Bénéficiez des services de nos partenaires locaux soigneusement sélectionnés
pour vous accompagner dans votre parcours d'achat immobilier

Berges du lac - immeuble 2011 - 3 chambres - terrasse 15 m² - expo sud ouest - dpe c - grand parking

— Bordeaux 33300 —
249 000 €
85 m²
4 pièces
parkingascenseur

Nos partenaires locaux
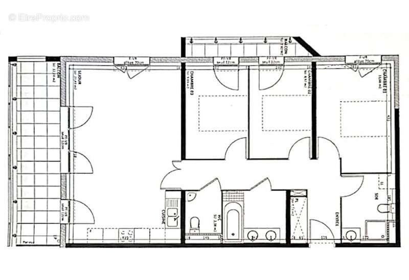
Optimhome vous présente ce bel appartement familial de 84,63 m² loi Carrez avec sa grande terrasse au 2eme étage avec ascenseur d'un immeuble récent (2011) et bien entretenu.

Bien agencé et en bon état, il comprend :
Une entrée avec une grande penderie, une pièce de vie de 31 m² très lumineuse avec cuisine équipée ouverte (électroménager Siemens), un espace nuit avec 3 chambres, une salle de bains avec meuble double vasque, une salle d'eau avec wc et emplacement machine, un second wc indépendant.

L'appartement dispose également d'une grande place de Parking pouvant accueillir deux voitures citadines, elle est proposée en sus du prix pour 16.000€.

Chauffage collectif au gaz (DPE C).
L'appartement se situe au calme sur jardin et bénéficie d'une vue dégagée.
Il est situé à proximité immédiate du Lac et de tous les commerces de la zone commerçante Bordeaux-Lac.
Tram C "Berges du Lac" à 2 min à pied.
Idéal pour une famille ou pour une mise en colocation ! Nombre de lots de la copropriété: 98, Montant moyen de la quote-part annuelle de charges (budget prévisionnel) : 2480€ soit 206€ par mois. Les honoraires d'agence sont à la charge de l'acquéreur, soit 3,50% TTC du prix hors honoraires.
Les informations sur les risques auxquels ce bien est exposé sont disponibles sur le site Géorisques : www. georisques. gouv. fr.

Contactez Romain BAUMARD Entrepreneur Individuel, Agent commercial OptimHome (RSAC N°901 553 610 Greffe de BORDEAUX) [Coordonnées masquées] (réf. 594690 )
Voir plus

Référence: 830031394890
Bien en copropriété. Nombre de lots : 98. Charges de copropriété : 206 €.
DPE
A
B
C
D
E
F
G
GES
A
B
C
D
E
F
G

Prêt immobilier

Vous souhaitez connaître votre capacité d’emprunt et trouver le meilleur crédit immobilier ?
Réaliser une simulation gratuite

Appartement à BORDEAUX
Appartement à BORDEAUX
Appartement à BORDEAUX
Appartement à BORDEAUX
Appartement à BORDEAUX
Appartement à BORDEAUX
Appartement à BORDEAUX
Appartement à BORDEAUX
Appartement à BORDEAUX
Appartement à BORDEAUX
Appartement à BORDEAUX
Ce site est protégé par reCAPTCHA la Politique de confidentialité et les Conditions d’utilisation de Google s’appliquent.
Obtenir un prêt immobilier au meilleur taux ?

En poursuivant votre navigation sans modifier vos paramètres, vous acceptez l'utilisation de cookies susceptibles de réaliser des statistiques de visite. Cliquez ici pour plus d'informations