Bénéficiez des services de nos partenaires locaux soigneusement sélectionnés
pour vous accompagner dans votre parcours d'achat immobilier

Maison 6 pièces de 165m²

— Fontaines 85200 —
285 000 €
165 m² / 1 680 m²
6 pièces
parkingbalcon/terrassejardin

Nos partenaires locaux
Située dans le village de Fontaines, cette maison non mitoyenne de 165 m², implantée sur un terrain d'environ 1 700 m², offre un super potentiel dans un cadre agréable et spacieux.
À pied, tous les services de proximité sont accessibles, et la maison se trouve à seulement 5 minutes de Fontenay-le-Comte.

Au rez-de-chaussée
L'entrée s'ouvre sur un bel espace de vie, bénéficiant d'une triple exposition Sud, Est et Ouest, et comprenant une salle à manger spacieuse ainsi qu'une cuisine indépendante avec arrière-cuisine attenante au garage.

L'espace nuit du rez-de-chaussée comprend deux chambres, une salle de bains équipée d'une baignoire et d'une douche, ainsi qu'un WC séparé.

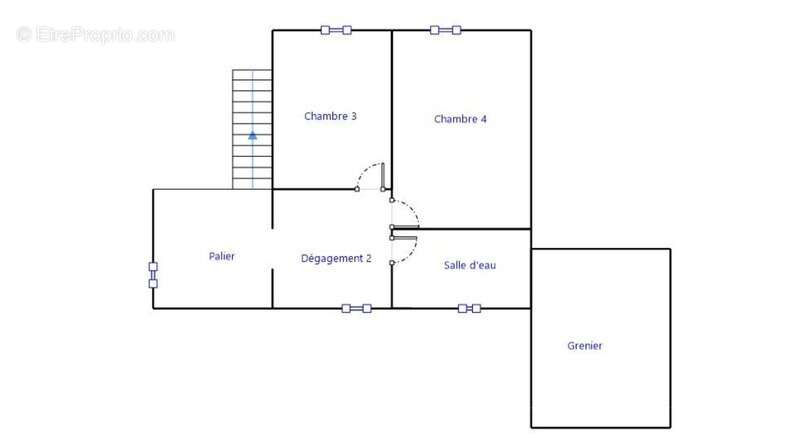
À l'étage
Une mezzanine dessert deux chambres et une salle d'eau avec WC.

Annexes et extérieurs
Côté extérieur, vous profiterez d'une terrasse donnant sur un jardin paysager agrémenté d'arbres fruitiers.
Un garage avec galetas et une cave complètent les dépendances, tandis qu'une véranda attenante au garage offre un espace supplémentaire tourné vers le jardin.
Vous disposerez enfin de places de stationnement, à l'extérieur ou dans le garage.

Conclusion
Cette maison se distingue par ses beaux volumes, son jardin généreux et sa triple exposition. Sa situation proche de Fontenay-le-Comte et des services accessibles à pied en fait une belle opportunité à découvrir.

Les honoraires sont à la charge du vendeur.
Les informations sur les risques auxquels ce bien est exposé sont disponibles sur le site Géorisques : www. georisques. gouv. fr.

Réseau Immobilier CAPIFRANCE - Votre agent commercial (RSAC N°882 795 891 - Greffe de LA ROCHELLE) Constance MOINARDEAU Entrepreneur Individuel [Coordonnées masquées] - Réf.926432
Voir plus

Référence: 340931361161
Honoraires à la charge du vendeur.
DPE
A
B
C
D
E
F
G
GES
A
B
C
D
E
F
G

Prêt immobilier

Vous souhaitez connaître votre capacité d’emprunt et trouver le meilleur crédit immobilier ?
Réaliser une simulation gratuite

Maison à FONTAINES
Maison à FONTAINES
Maison à FONTAINES
Maison à FONTAINES
Maison à FONTAINES
Maison à FONTAINES
Maison à FONTAINES
Maison à FONTAINES
Maison à FONTAINES
Maison à FONTAINES
Maison à FONTAINES
Maison à FONTAINES
Maison à FONTAINES
Maison à FONTAINES
Maison à FONTAINES
Maison à FONTAINES
Maison à FONTAINES
Maison à FONTAINES
Maison à FONTAINES
Maison à FONTAINES
Maison à FONTAINES
Maison à FONTAINES
Maison à FONTAINES
Maison à FONTAINES
Ce site est protégé par reCAPTCHA la Politique de confidentialité et les Conditions d’utilisation de Google s’appliquent.
Obtenir un prêt immobilier au meilleur taux ?

En poursuivant votre navigation sans modifier vos paramètres, vous acceptez l'utilisation de cookies susceptibles de réaliser des statistiques de visite. Cliquez ici pour plus d'informations