Maison 190m² à fresnay-sur-sarthe

— Fresnay-Sur-Sarthe 72130 —
210 000 €
190 m² / 9 777 m²
7 pièces
parkingbalcon/terrassejardin

EXCLUSIVITE / 72130 - FRESNAY SUR SARTHE - MAISON 7 PIECES SUR SOUS-SOL - PARC ARBORE

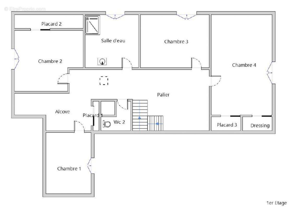
Aux confins de la Sarthe et de l'Orne, à quelques kilomètres du cœur de l'ancienne cité fortifiée de Fresnay-sur-Sarthe, venez découvrir cette maison pleine de charme de 7 pièces, 5 chambres, agrémentée d'un sous-sol et d'un parc arboré.

Efficity, l'agence qui estime votre bien en ligne, vous propose cette habitation de 190 m², mêlant vieilles pierres et poutres apparentes, nichée dans un écrin de verdure d'un hectare.

Le bien est composé comme suit :
- au rez-de-chaussée : entrée, salon/séjour, cuisine aménagée et équipée, salle à manger, chambre avec salle de bains, buanderie, wc séparés,
- à l'étage : palier, quatre chambres, salle d'eau, wc séparés,
- au sous-sol : grand garage de 100 m², avec local technique, coin atelier, cave,
- à l'extérieur : cour, terrasse, puits, parc arboré.

Chauffage au gaz et production d'eau chaude électrique.
Travaux à prévoir. Proximité axes routiers et gare.

Informations, plans et photos complémentaires sur demande.
Les informations sur les risques auxquels ce bien est exposé sont disponibles sur le site Georisque : georisques. gouv. fr
Martin Trou - EI - est Agent Commercial mandataire en immobilier, immatriculé au Registre Spécial des Agents Commerciaux du Tribunal de Commerce de Mans sous le n°823968490.
Siège social du mandant : effiCity, 48 avenue de Villiers - 75017 PARIS - Société par Actions Simplifiée, société au capital de 132 373,05 euros, immatriculée au RCS Paris 497 617 746 et titulaire de la Carte professionnelle CPI 75[Coordonnées masquées]02 025 - CCI Paris IDF - Caisse de Garantie : GALIAN Assurances 89 rue de la Boétie 75008 Paris
Voir plus

Référence: 195853
Honoraires à la charge du vendeur.
Barème des honoraires
DPE
A
B
C
D
E
F
G
GES
A
B
C
D
E
F
G

Prêt immobilier

Vous souhaitez connaître votre capacité d’emprunt et trouver le meilleur crédit immobilier ?
Réaliser une simulation gratuite

Maison à FRESNAY-SUR-SARTHE
Maison à FRESNAY-SUR-SARTHE
Maison à FRESNAY-SUR-SARTHE
Maison à FRESNAY-SUR-SARTHE
Maison à FRESNAY-SUR-SARTHE
Maison à FRESNAY-SUR-SARTHE
Maison à FRESNAY-SUR-SARTHE
Maison à FRESNAY-SUR-SARTHE
Maison à FRESNAY-SUR-SARTHE
Maison à FRESNAY-SUR-SARTHE
Maison à FRESNAY-SUR-SARTHE
Maison à FRESNAY-SUR-SARTHE
Maison à FRESNAY-SUR-SARTHE
Maison à FRESNAY-SUR-SARTHE
Maison à FRESNAY-SUR-SARTHE
Maison à FRESNAY-SUR-SARTHE
Maison à FRESNAY-SUR-SARTHE
Maison à FRESNAY-SUR-SARTHE
Maison à FRESNAY-SUR-SARTHE
Maison à FRESNAY-SUR-SARTHE
Maison à FRESNAY-SUR-SARTHE
Maison à FRESNAY-SUR-SARTHE
Ce site est protégé par reCAPTCHA la Politique de confidentialité et les Conditions d’utilisation de Google s’appliquent.
Obtenir un prêt immobilier au meilleur taux ?

En poursuivant votre navigation sans modifier vos paramètres, vous acceptez l'utilisation de cookies susceptibles de réaliser des statistiques de visite. Cliquez ici pour plus d'informations