Terrain constructible de 26 ares 96

— Bourogne 90140 —
99 500 €
2 696 m²

Charmant terrain bâtissable de 2696 m².

Entièrement plat, viabilisé et divisible.
Libre de tout constructeur.
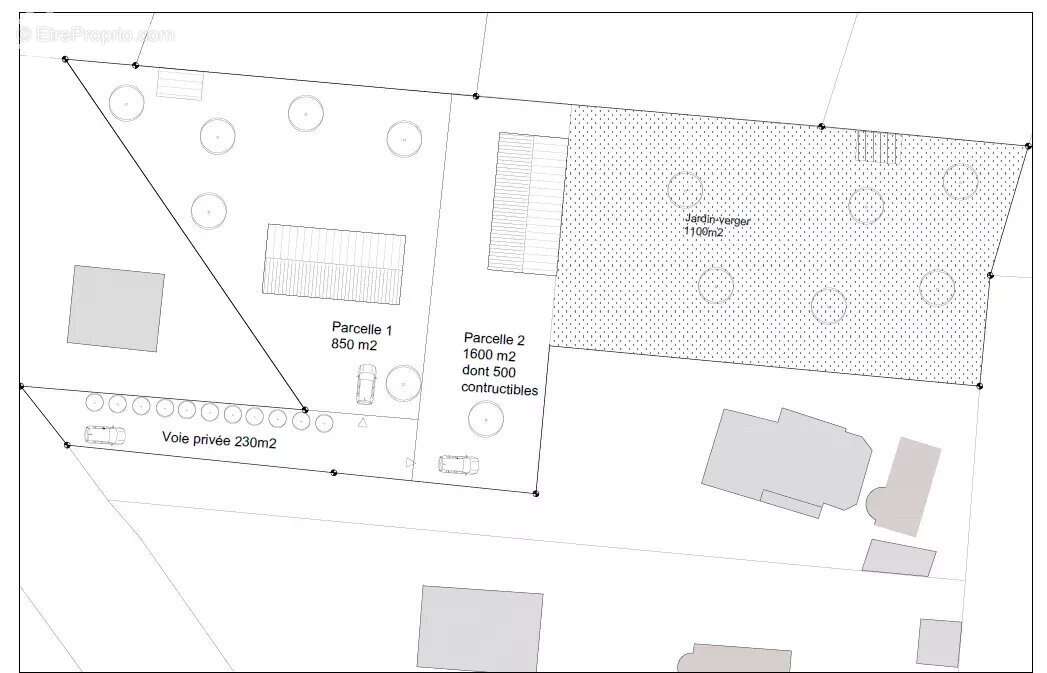
( exemple d'une proposition en 2 parcelles en photo N°3)

Proche gare TGV et Hôpital et de la frontière Suisse ( 25mn Porrentruy - 40mn Delémont)


Ce terrain est présenté par Jan CHELMINSKI YOULIVE Immobilier


..

Référence: 1772
Barème des honoraires

Prêt immobilier

Vous souhaitez connaître votre capacité d’emprunt et trouver le meilleur crédit immobilier ?
Réaliser une simulation gratuite

Terrain à BOUROGNE
Terrain à BOUROGNE
Terrain à BOUROGNE
Terrain à BOUROGNE
Ce site est protégé par reCAPTCHA la Politique de confidentialité et les Conditions d’utilisation de Google s’appliquent.
Obtenir un prêt immobilier au meilleur taux ?

En poursuivant votre navigation sans modifier vos paramètres, vous acceptez l'utilisation de cookies susceptibles de réaliser des statistiques de visite. Cliquez ici pour plus d'informations