Bénéficiez des services de nos partenaires locaux soigneusement sélectionnés
pour vous accompagner dans votre parcours d'achat immobilier

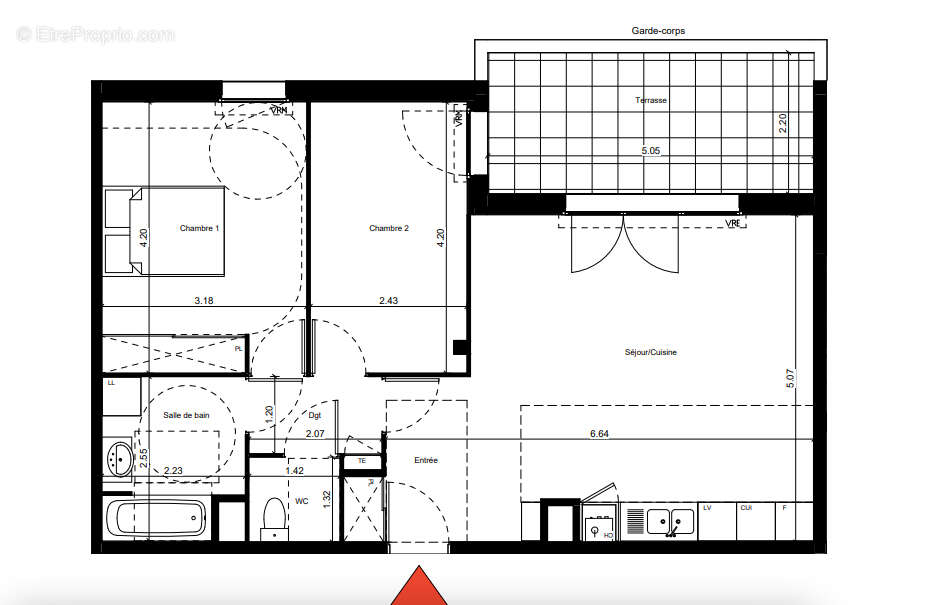
Appartement 63m² à salon-de-provence

— Salon-De-Provence 13300 —
260 500 €
63 m² / 11 m²
3 pièces
jardin

Nos partenaires locaux
Salon de Provence, Chemin des Aires de la Dîme, venez visiter ce futur appartement T3 de 62m2 tout beau tout récent avec sa grande terrasse de 11m2. Vous apprécierez sa bonne disposition, son extérieur, sa copropriété tranquille et son quartier tranquille. Une question ? Venez visiter ! Avec 2 places de parking sous sol et extérieur.
En vente chez ERA IMMOBILIER à Salon de Provence ! Appelez-nous pour une visite !

Référence: 1042MC

Prêt immobilier

Vous souhaitez connaître votre capacité d’emprunt et trouver le meilleur crédit immobilier ?
Réaliser une simulation gratuite

Appartement à SALON-DE-PROVENCE
Appartement à SALON-DE-PROVENCE
Ce site est protégé par reCAPTCHA la Politique de confidentialité et les Conditions d’utilisation de Google s’appliquent.
Obtenir un prêt immobilier au meilleur taux ?

En poursuivant votre navigation sans modifier vos paramètres, vous acceptez l'utilisation de cookies susceptibles de réaliser des statistiques de visite. Cliquez ici pour plus d'informations