Terrain 150m² à nice

— Nice 06300 —
199 000 €
150 m²

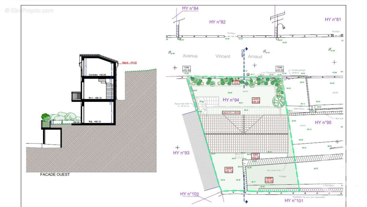
NICE -EST : Terrain à bâtir d'une surface de 148m² avec permis de construire validé pour une maison d'environ 92,85 m2m² sur 3 niveaux . Cette maison se composerai de deux chambres de plain pieds avec SDE, d'un vaste séjour avec cuisine ouverte, d'une chambre avec salle de bains. Un garage est également prévu dans ce projet. Rare dans le secteur. NICE - EAST: Building plot with an area of 148m² with approved building permit for a house of approximately 92.85m² on 3 levels. This house will consist of two bedrooms on the ground floor with shower room, a large living room with open kitchen, and a bedroom with bathroom. A garage is also included in this project. Rare in the area.
Voir plus

Référence: 6999
Honoraires à la charge du vendeur.
Barème des honoraires

Prêt immobilier

Vous souhaitez connaître votre capacité d’emprunt et trouver le meilleur crédit immobilier ?
Réaliser une simulation gratuite

Terrain à NICE
Terrain à NICE
Terrain à NICE
Terrain à NICE
Terrain à NICE
Terrain à NICE
Ce site est protégé par reCAPTCHA la Politique de confidentialité et les Conditions d’utilisation de Google s’appliquent.
Obtenir un prêt immobilier au meilleur taux ?

En poursuivant votre navigation sans modifier vos paramètres, vous acceptez l'utilisation de cookies susceptibles de réaliser des statistiques de visite. Cliquez ici pour plus d'informations