Bénéficiez des services de nos partenaires locaux soigneusement sélectionnés
pour vous accompagner dans votre parcours d'achat immobilier

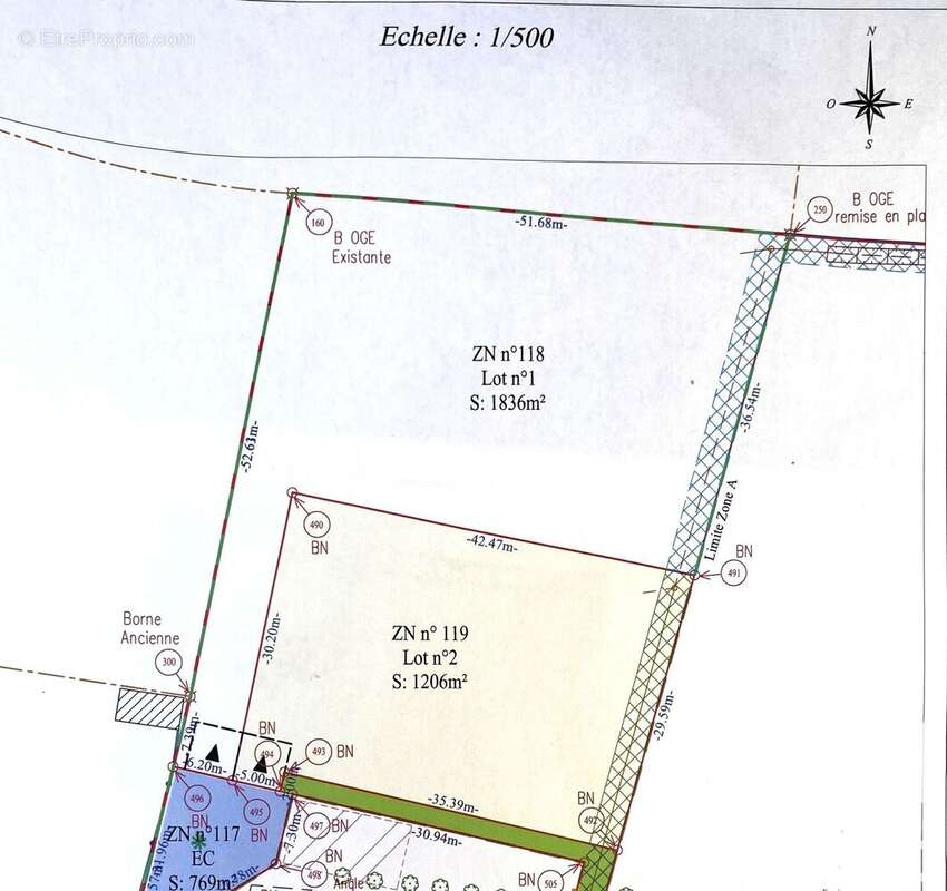
Terrain 1206m² à mauvezin

— Mauvezin 32120 —
58 700 €
1 206 m²

Nos partenaires locaux
Iad France - Virginie Cecchini vous propose : * EXCLUSIVITÉ * MAUVEZIN

Proche Centre-ville, AU CALME, superbe Terrain Constructible Arboré de 1 206 m² à Mauvezin.

Complètement viabilisé, eau et électricité, vous n'avez plus qu'à prévoir votre assainissement autonome. L'étude G1 est également disponible.
Pas de contraintes pour la construction.
Vue dégagée sur les champs.
Possibilité d'accompagnement dans le choix du constructeur et / ou des artisans si besoin, sans supplément.

TOUTE PROPOSITION SERA CONSIDÉRÉE.

Honoraires d'agence à la charge du vendeur.
Bien non soumis au DPE. Les informations sur les risques auxquels ce bien est exposé, y compris l'obligation légale de débroussaillement, sont disponibles sur le site Géorisques : http://www.georisques.gouv.fr.
La présente annonce immobilière a été rédigée sous la responsabilité éditoriale de Mme Virginie Cecchini mandataire indépendant en immobilier (sans détention de fonds), agent commercial de la SAS I@D France immatriculé au RSAC de Toulouse sous le numéro 901235119, titulaire de la carte de démarchage immobilier pour le compte de la société I@D France SAS.
Informations LOI ALUR :
Honoraires charge vendeur. (gedeon_6727_31767765)
Voir plus

Référence: 1822199
Honoraires à la charge du vendeur.

Prêt immobilier

Vous souhaitez connaître votre capacité d’emprunt et trouver le meilleur crédit immobilier ?
Réaliser une simulation gratuite

Photo 1 - Terrain à MAUVEZIN
Photo 1
Photo 2 - Terrain à MAUVEZIN
Photo 2
Photo 3 - Terrain à MAUVEZIN
Photo 3
Photo 4 - Terrain à MAUVEZIN
Photo 4
Ce site est protégé par reCAPTCHA la Politique de confidentialité et les Conditions d’utilisation de Google s’appliquent.
Obtenir un prêt immobilier au meilleur taux ?

En poursuivant votre navigation sans modifier vos paramètres, vous acceptez l'utilisation de cookies susceptibles de réaliser des statistiques de visite. Cliquez ici pour plus d'informations