Appartement traversant de 67 m² de 4 pièces, rue rambuteau - 75003 paris

— Paris-3e 75003 —
760 000 €
67 m²
4 pièces

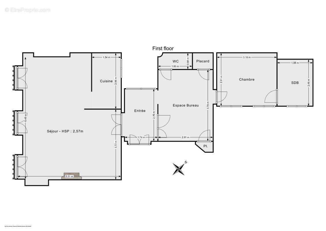
Liberkeys vous propose, au cœur du 3e arrondissement de Paris, un appartement traversant triple exposition (sud-est ouest) de 66,62 m² (loi Carrez) situé au 4éme étage sur 5, sans ascenseur, offrant un cadre de vie authentiquement parisien, au pied des commerces de bouche, restaurants et espaces culturels emblématiques. Niché dans la rue Rambuteau à proximité immédiate du Centre Pompidou et de l'effervescent quartier du Marais, et la qualité de son environnement, idéalement desservi par la station de métro Rambuteau à moins de 200 mètres.

Situé au sein d'un immeuble bien entretenu, cet appartement traversant est agencé pour maximiser chaque espace : une entrée de 5 m² distribue une pièce à vivre lumineuse de 30 m²( salon et salle à manger ), une cuisine classique fonctionnelle de 4 m². un espace bureau de 11 m², une chambre attenante à une salle de bain donnants sur cour. Un emplacement vélos complète ce bien, (transports, écoles, commerces de proximité, marchés, espaces verts).

Charges de copropriété : 483 € par trimestre. Taxe foncière annuelle : 1275 €.

Montant estimé des dépenses annuelles d'énergie pour un usage standard : entre 1490 € et 2080 € par an. Prix moyens des énergies indexés sur l'année 2021 (abonnements compris).
Voir plus

Référence: DOM22603
Bien en copropriété. Nombre de lots : 29. Charges de copropriété : 161 €.
Honoraires à la charge du vendeur.
DPE
A
B
C
D
E
F
G
GES
A
B
C
D
E
F
G

Prêt immobilier

Vous souhaitez connaître votre capacité d’emprunt et trouver le meilleur crédit immobilier ?
Réaliser une simulation gratuite

Appartement à PARIS-3E
Appartement à PARIS-3E
Appartement à PARIS-3E
Appartement à PARIS-3E
Appartement à PARIS-3E
Appartement à PARIS-3E
Appartement à PARIS-3E
Appartement à PARIS-3E
Appartement à PARIS-3E
Appartement à PARIS-3E
Ce site est protégé par reCAPTCHA la Politique de confidentialité et les Conditions d’utilisation de Google s’appliquent.
Obtenir un prêt immobilier au meilleur taux ?

En poursuivant votre navigation sans modifier vos paramètres, vous acceptez l'utilisation de cookies susceptibles de réaliser des statistiques de visite. Cliquez ici pour plus d'informations