Bénéficiez des services de nos partenaires locaux soigneusement sélectionnés
pour vous accompagner dans votre parcours d'achat immobilier

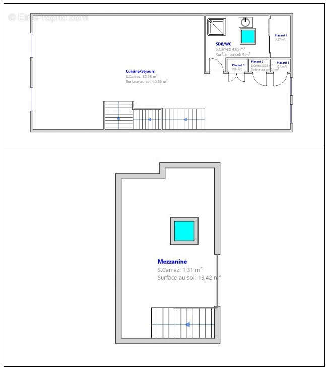
Annecy Vieille Ville - Coup de cœur pour ce loft de 62 m2 utiles

— Annecy 74000 —
398 000 €
62 m²
2 pièces

Nos partenaires locaux
Annecy Le charme perché au sommet
Coup de cœur garanti pour ce loft atypique de 62 m2 au sol, perché au 3ᵉ et dernier étage d’une résidence sans ascenseur l’occasion rêvée de faire du sport sans abonnement. Situé dans une rue piétonne pleine de cachet, au cœur des vieux quartiers d’Annecy, ce T2 façon loft a tout pour plaire.
À découvrir sans tarder :


Un salon-séjour lumineux pour vos soirées cocooning ou vos apéros improvisés


Une cuisine ouverte et équipée, prête à accueillir vos meilleures recettes (ou vos plats à emporter)


Une chambre en mezzanine, parfaite pour rêver de vos prochaines balades au bord du lac


Une salle d’eau moderne et un WC, parce que le confort, c’est aussi dans les détails


Localisation premium : à deux pas du lac, des commerces, des restaurants et de l’ambiance unique du centre historique. Ici, tout se fait à pied, sauf l’ascension vers votre nouveau nid.
Rénovation haut de gamme, matériaux de qualité, aucun travaux à prévoir. Vous posez vos valises, et c’est parti.
Investisseurs, ouvrez l’œil : rendement locatif au top avec 80 à 85 % de taux de remplissage en location courte durée. Un vrai petit bijou pour faire fructifier votre patrimoine.
Ce loft ne restera pas longtemps sur le marché. À visiter avant qu’il ne file entre deux locations.
Voir plus

Référence: 87
Honoraires à la charge du vendeur.
Barème des honoraires
DPE
A
B
C
D
E
F
G
GES
A
B
C
D
E
F
G
Appartement à ANNECY
Appartement à ANNECY
Appartement à ANNECY
Appartement à ANNECY
Appartement à ANNECY
Appartement à ANNECY
Appartement à ANNECY
Appartement à ANNECY
Appartement à ANNECY
Géorisques

Les informations sur les risques auxquels ce bien est exposé sont disponibles sur le site Géorisques : www.georisques.gouv.fr

Ce site est protégé par hCaptcha Politique de confidentialité et Conditions d’utilisation s’appliquent.

En poursuivant votre navigation sans modifier vos paramètres, vous acceptez l'utilisation de cookies susceptibles de réaliser des statistiques de visite. Cliquez ici pour plus d'informations