Bénéficiez des services de nos partenaires locaux soigneusement sélectionnés
pour vous accompagner dans votre parcours d'achat immobilier

Paris 11ème - saint ambroise - voltaire

— Paris-11e 75011 —
480 000 €
45 m²
2 pièces

Nos partenaires locaux
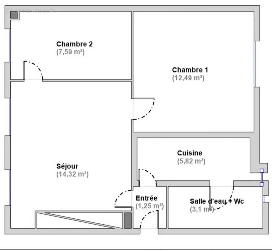
Cet appartement de 2/3 pièces (loi Carrez 44,57 m2 ) au cœur du 11ème arrondissement, est situé rue du Chemin Vert entre l’avenue Parmentier et le boulevard Voltaire. Au sein d’une belle copropriété avec une grande cour pavée, le bien est au 2ème étage sans ascenseur. L’appartement est traversant.

Il est composé côté rue d’un salon avec deux fenêtres, d’une chambre avec une fenêtre (chambre qui peut être réunie au salon) et côté cour d’une grande chambre avec rangements, une cuisine et une salle de douche avec toilettes.

L’appartement nécessitera des travaux.

Les charges de copropriété sont de 1400€/an

POINTS + : LOCALISATION - SURFACE OPTIMISÉE - CHAMBRE AU CALME - RAVALEMENT EN COURS
Voir plus

Référence: 86379226
Barème des honoraires
DPE
A
B
C
D
E
F
G
GES
A
B
C
D
E
F
G

Prêt immobilier

Vous souhaitez connaître votre capacité d’emprunt et trouver le meilleur crédit immobilier ?
Réaliser une simulation gratuite

Appartement à PARIS-11E
Appartement à PARIS-11E
Appartement à PARIS-11E
Appartement à PARIS-11E
Appartement à PARIS-11E
Appartement à PARIS-11E
Appartement à PARIS-11E
Appartement à PARIS-11E
Appartement à PARIS-11E
Ce site est protégé par reCAPTCHA la Politique de confidentialité et les Conditions d’utilisation de Google s’appliquent.
Obtenir un prêt immobilier au meilleur taux ?

En poursuivant votre navigation sans modifier vos paramètres, vous acceptez l'utilisation de cookies susceptibles de réaliser des statistiques de visite. Cliquez ici pour plus d'informations