Bénéficiez des services de nos partenaires locaux soigneusement sélectionnés
pour vous accompagner dans votre parcours d'achat immobilier

Maison coup de coeur ? lézigné? 3 chambres

— Lezigne 49430 —
328 000 €
152 m² / 1 363 m²
6 pièces
jardin

Nos partenaires locaux
Exclusivité
Amoureux des maisons où charme, confort et fonctionnalité ne font qu'un, cette propriété est faite pour vous !
Située à deux pas du Loir et des écoles, cette belle maison familiale de 152 m² habitables (loi carrez) offre des prestations de qualité, des espaces lumineux et un extérieur soigneusement aménagé.

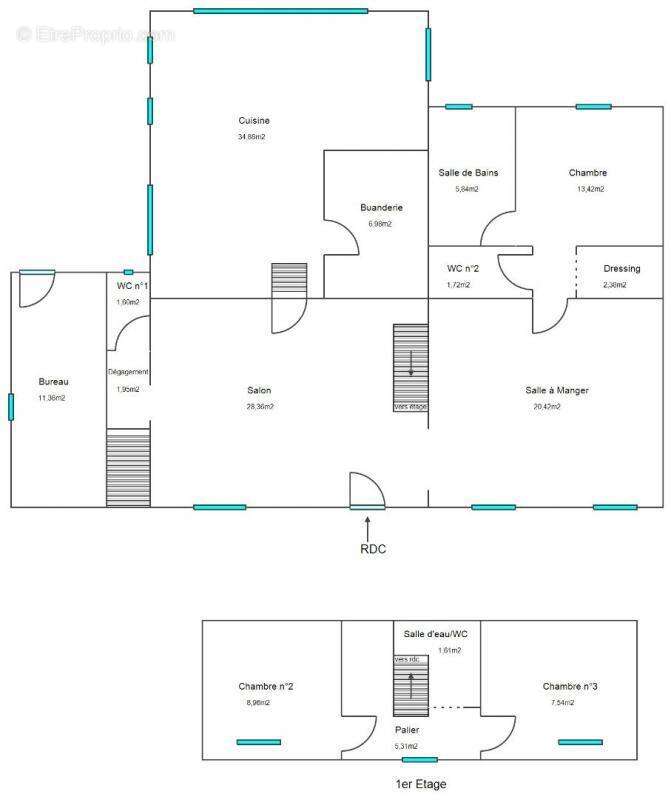
Au rez-de-chaussée :
Une entrée avec placard,
Un salon chaleureux avec cheminée à insert,
Une salle à manger ouverte et conviviale,
Une cuisine aménagée et équipée avec accès direct à la terrasse,
Une arrière-cuisine,
Une suite parentale avec dressing et salle de bain privative,
Un WC indépendant.

A l'étage :

Un palier desservant deux belles chambres avec placards et
une salle d'eau avec WC.

Extérieurs soignés et équipements haut de gamme :

Une grande terrasse,

Une piscine chauffée, avec un deuxième coin terrasse cocooning pour vos moments de détente,

Une cour, Un double garage, Un abri de jardin,
Un chalet isolé comprenant une cave, un WC et un local piscine,

Un terrain joliment arboré, entièrement clos,

Portail motorisé pour plus de confort et de sécurité.

Environnement idéal : à proximité immédiate du Loir, des écoles, et dans un cadre paisible, cette maison vous séduira par sa qualité de vie.

Contactez-moi pour une visite et laissez-vous charmer par cette maison où vous n'aurez plus qu'à poser vos valises !

Le prix 328 000 euros TTC (dont 3,96% d'honoraires à la charge de l'acquéreur soit 315 500 euros hors frais d'agence).

DPE D 209- GES C 11
Montant moyen estimé des dépenses annuelles d'énergie pour un usage standard établi à partir des prix de l'énergie de l'année 2023 : entre 1 850 euros et 2 504 euros
Les informations sur les risques auxquels ce bien est exposé sont disponibles sur le site Géorisques http://www.georisques.gouv.fr'.

Pour découvrir ce bien, contactez
David LIEGARD au tél [Coordonnées masquées] et par courriel à:
d.liegarddeslongschamps@propriétes-privees.com
Estimation gratuite de votre bien en 48 heures.

Cette présente annonce a été rédigée sous la responsabilité éditorial de David Liegard Deslongschamps agissant sous le statut d'agent commercial immatriculé au RSAC ANGERS 521207480 auprès de la SAS PROPRIETES PRIVEES, au capital de 44 920 euros , ZAC LE CHËNE FERRE- 44 Allée des cinq continents 44120 VERTOU; SIRET 487 624 777 00040, RCS Nantes . Carte professionnelle Transaction sur immeubles et fonds de commerce (T) et gestion immobilière (G) n° CPI 44[Coordonnées masquées]8 délivrée par la CCI Nantes- Saint-Nazaire. Compte séquestre n° 3[Coordonnées masquées] BPA SAINT-SEBASTIEN- SUR-LOIRE (44230). Garantie GALIAN-SMABTP- 89 rue de la Boétie, 75008 Paris-n°28137 J pour 2 000 000 euros pour T et 120 000 euros pour G. Assurance responsabilité civile professionnelle par GALIAN-SMABTP n° de police 28137 J Mandat exclusif réf: n°425968. Le professionnel garantit et sécurise votre projet immobilier. (3.96 % honoraires TTC à la charge de l'acquéreur.)

David LIEGARD DESLONGSCHAMPS (EI) Agent Commercial - Numéro RSAC : ANGERS 521207480 - .
Voir plus

Référence: 425968LGD
Honoraires d'agence de 3.96% à la charge de l'acquéreur
DPE
A
B
C
D
E
F
G
GES
A
B
C
D
E
F
G

Prêt immobilier

Vous souhaitez connaître votre capacité d’emprunt et trouver le meilleur crédit immobilier ?
Réaliser une simulation gratuite

Maison à LEZIGNE
Maison à LEZIGNE
Maison à LEZIGNE
Maison à LEZIGNE
Maison à LEZIGNE
Maison à LEZIGNE
Maison à LEZIGNE
Maison à LEZIGNE
Maison à LEZIGNE
Maison à LEZIGNE
Maison à LEZIGNE
Maison à LEZIGNE
Maison à LEZIGNE
Maison à LEZIGNE
Ce site est protégé par reCAPTCHA la Politique de confidentialité et les Conditions d’utilisation de Google s’appliquent.
Obtenir un prêt immobilier au meilleur taux ?

En poursuivant votre navigation sans modifier vos paramètres, vous acceptez l'utilisation de cookies susceptibles de réaliser des statistiques de visite. Cliquez ici pour plus d'informations