Nation - superbe 2 pièces avec grande terrasse

— Paris-20e 75020 —
680 000 €
57 m²
2 pièces
parkingbalcon/terrasseascenseur

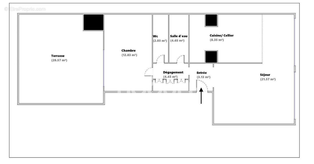
L'agence GUY HOQUET NATION vous invite à découvrir ce magnifique appartement de 57 m² avec une terrasse exceptionnelle de 28 m², baignée de soleil et sans vis-à-vis, situé au 1er étage surélevé d'une résidence récente et bien entretenue. Le séjour spacieux de plus de 21 m² donnant sur la terrasse arborée, offre un véritable espace de détente en plein coeur de Paris. La cuisine semi-ouverte, aménagée et équipée, allie convivialité et fonctionnalité. L'espace nuit se compose d'une belle chambre de 13 m², d'une salle d'eau moderne, et de toilettes indépendantes. En parfait état, l'appartement bénéficie de prestations de qualité : double vitrage PVC, chauffage collectif au gaz, calme absolu et vue dégagée. Une cave et un parking complète ce bien. Parfait pour les amoureux de Paris à la recherche d'un cadre de vie lumineux, paisible et verdoyant. (4.62 % honoraires TTC à la charge de l'acquéreur.) Copropriété de 69 lots - dont 20 lots habitation. (Pas de procédure en cours). Charges annuelles : 3000 euros.
Voir plus

Référence: 26
Bien en copropriété. Nombre de lots : 69. Charges de copropriété : 3000 €.
Honoraires d'agence de 4.62% à la charge de l'acquéreur
DPE
A
B
C
D
E
F
G
GES
A
B
C
D
E
F
G

Prêt immobilier

Vous souhaitez connaître votre capacité d’emprunt et trouver le meilleur crédit immobilier ?
Réaliser une simulation gratuite

Appartement à PARIS-20E
Appartement à PARIS-20E
Appartement à PARIS-20E
Appartement à PARIS-20E
Appartement à PARIS-20E
Appartement à PARIS-20E
Ce site est protégé par reCAPTCHA la Politique de confidentialité et les Conditions d’utilisation de Google s’appliquent.
Obtenir un prêt immobilier au meilleur taux ?

En poursuivant votre navigation sans modifier vos paramètres, vous acceptez l'utilisation de cookies susceptibles de réaliser des statistiques de visite. Cliquez ici pour plus d'informations