Bénéficiez des services de nos partenaires locaux soigneusement sélectionnés
pour vous accompagner dans votre parcours d'achat immobilier

Besancon square st amour type 2 de 48 m² avec balcon sur cour

— Besancon 25000 —
175 000 €
47 m²
2 pièces

Nos partenaires locaux
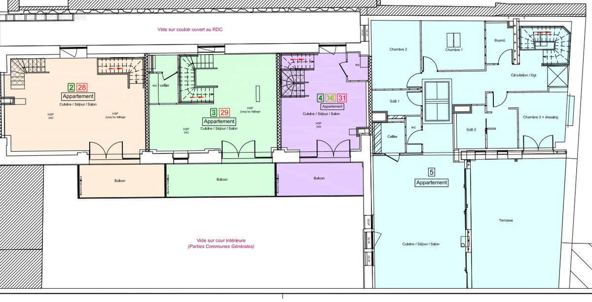
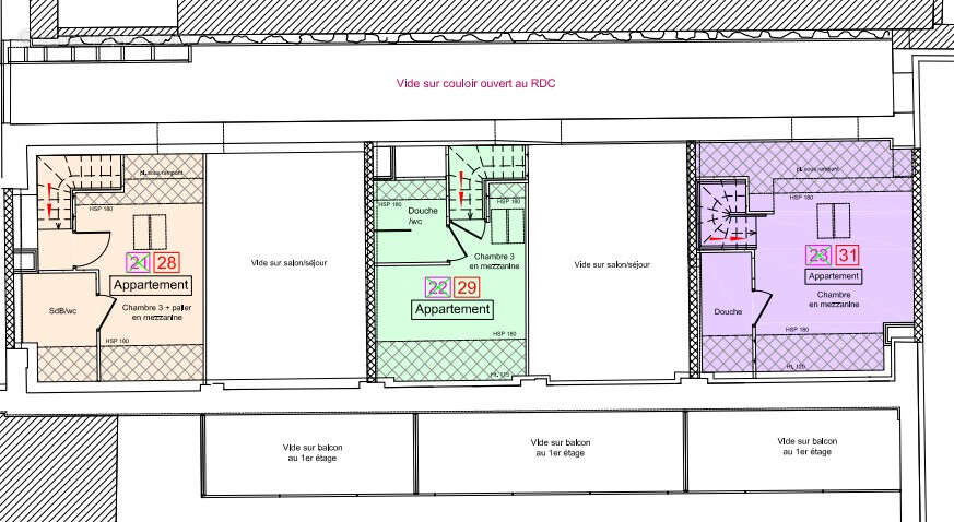
Idéalement situé au coeur de la Boucle dans une copro entièrement rénové, ce Type 2 d'environ 48 m², possède un balcon de + de 10m². C'est un duplex très lumineux qui se trouve au 1er et dernier étage du bâtiment. Sur cour et sans vis à vis. Reconstruction complète, il respecte les normes d'aujourd'hui (isolation mur toiture, électricité, fenêtres ). Il est composé d'un hall, une pièce de vie de 24m² avec cuisine donnant sur le balcon de 10 m², un toilette. A l'étage une chambre et sa salle d'eau. Une place de parking couverte dans la cour intérieur est possible en sus. Géorisques : www.georisques.gouv.fr Les informations sur les risques auxquels ce bien est exposé sont disponibles sur le site Géorisques. Contact : [Coordonnées masquées] [Coordonnées masquées] Copropriété de 20 lots - dont 5 lots habitation. (Pas de procédure en cours). Charges annuelles : 1200 euros.
Voir plus

Référence: 2
Bien en copropriété. Nombre de lots : 20. Charges de copropriété : 1200 €.
Honoraires à la charge du vendeur.

Prêt immobilier

Vous souhaitez connaître votre capacité d’emprunt et trouver le meilleur crédit immobilier ?
Réaliser une simulation gratuite

Appartement à BESANCON
Appartement à BESANCON
Appartement à BESANCON
Ce site est protégé par reCAPTCHA la Politique de confidentialité et les Conditions d’utilisation de Google s’appliquent.
Obtenir un prêt immobilier au meilleur taux ?

En poursuivant votre navigation sans modifier vos paramètres, vous acceptez l'utilisation de cookies susceptibles de réaliser des statistiques de visite. Cliquez ici pour plus d'informations