Bénéficiez des services de nos partenaires locaux soigneusement sélectionnés
pour vous accompagner dans votre parcours d'achat immobilier

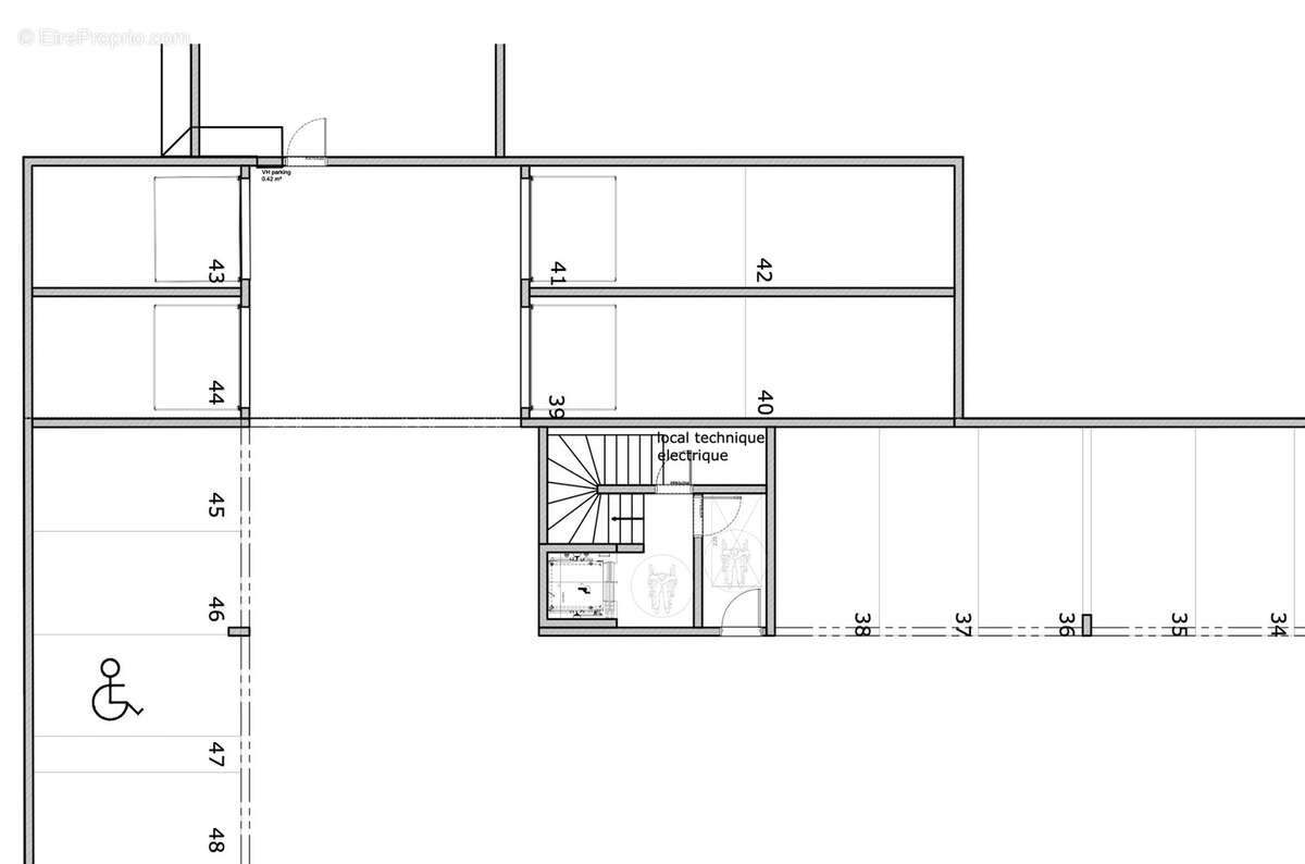
Vente lot 6 garages, 1 parking souterrain, 3 parkings extérieurs cormeilles-en-parisis (95)

— Cormeilles-En-Parisis 95240 —
173 000 €
173 m²

Nos partenaires locaux
CORMEILLES-EN-PARISIS - Nous vous proposons à la vente un lot exceptionnel de 6 garages fermés (dont deux doubles en enfilade), 1 parking en 1er sous-sol et 3 parkings aériens (extérieurs), situés dans une résidence neuve et sécurisée, disponible fin 2025. Accès pratique par porte basculante motorisée et télécommande. Emplacement recherché dans le quartier Haut et Centre, à seulement 1 km du centre-ville. Lignes de bus à proximité immédiate, gare de Cormeilles-en-Parisis (Transilien J vers Paris) à 2 km et accès à l'A15 en 5 minutes en voiture. Idéal pour un investisseur, avec une rentabilité nette estimée à 5,5% sur la base d'une location à 60€/mois/parking aérien, 80€/mois/parking souterrain, 100€/mois/garage simple, 150€/mois/garage double. Achat possible à l'unité ou en lots à la demande. Opportunité rare offrant diversité et fort potentiel locatif. N'hésitez pas à nous contacter pour plus d'informations. Cette annonce vous est proposée par mongaragenville, le spécialiste immobilier du stationnement.
Voir plus

Référence: 1670-8-CORMEILLES-R
Bien en copropriété. Nombre de lots : 30.
Honoraires à la charge du vendeur.
Barème des honoraires

Prêt immobilier

Vous souhaitez connaître votre capacité d’emprunt et trouver le meilleur crédit immobilier ?
Réaliser une simulation gratuite

Parking à CORMEILLES-EN-PARISIS
Parking à CORMEILLES-EN-PARISIS
Parking à CORMEILLES-EN-PARISIS
Ce site est protégé par reCAPTCHA la Politique de confidentialité et les Conditions d’utilisation de Google s’appliquent.
Obtenir un prêt immobilier au meilleur taux ?

En poursuivant votre navigation sans modifier vos paramètres, vous acceptez l'utilisation de cookies susceptibles de réaliser des statistiques de visite. Cliquez ici pour plus d'informations