Bénéficiez des services de nos partenaires locaux soigneusement sélectionnés
pour vous accompagner dans votre parcours d'achat immobilier

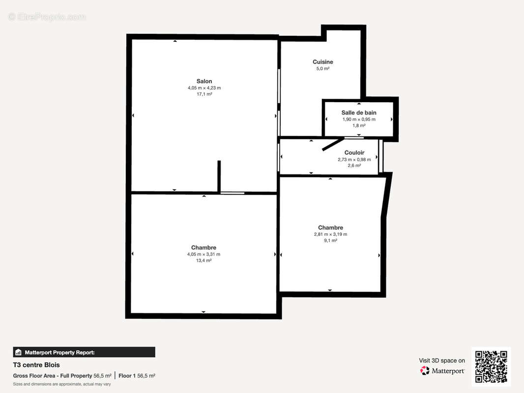
Appartement centre de blois 3 pièces 51 m2

— Blois 41000 —
90 000 €
51 m²
3 pièces

Nos partenaires locaux
Appartement à vendre dans le centre de Blois, au pied du Château. Entièrement rénové et vendu meublé, il est situé au deuxième étage d'une petite copropriété. Il est composé d'une entrée, d'une cuisine aménagée, d'un séjour, d'une chambre avec placards, d'une pièce à usage de chambre sans ouverture sur l'extérieur, ainsi qu'une salle d'eau avec wc. Appartement adapté pour une résidence principale ou pour une location rentable !
Dernier loyer 630€ hors charges.
Taxe foncière 762€ charges de copro 70€/mois environ
Pour plus de renseignements, contactez Maxime de Noray au O6 59 54 31 91 ou [Coordonnées masquées]
Le prix de première offre possible est fixé à 90 000€ (honoraires inclus). Aucuns frais supplémentaires ne sont à prévoir. La participation à la vente interactive est soumise à une visite du bien et à la constitution d’un dossier de financement validé. Toutes les offres seront transmises au vendeur qui restera libre dans la sélection de celle à laquelle il entend donner suite.
Cette annonce vous est proposée par de NORAY Maxime - - NoRSAC: 834 718 777, Enregistré au Greffe du tribunal de commerce de Tours Les informations sur les risques auxquels ce bien est exposé sont disponibles sur le site Géorisques : www.georisques.gouv.fr
Voir plus

Référence: 7707
Bien en copropriété. Nombre de lots : 25. Charges de copropriété : 844 €.
Barème des honoraires
DPE
A
B
C
D
E
F
G
GES
A
B
C
D
E
F
G

Prêt immobilier

Vous souhaitez connaître votre capacité d’emprunt et trouver le meilleur crédit immobilier ?
Réaliser une simulation gratuite

Appartement à BLOIS
Appartement à BLOIS
Appartement à BLOIS
Appartement à BLOIS
Appartement à BLOIS
Appartement à BLOIS
Appartement à BLOIS
Ce site est protégé par reCAPTCHA la Politique de confidentialité et les Conditions d’utilisation de Google s’appliquent.
Obtenir un prêt immobilier au meilleur taux ?

En poursuivant votre navigation sans modifier vos paramètres, vous acceptez l'utilisation de cookies susceptibles de réaliser des statistiques de visite. Cliquez ici pour plus d'informations