Beausoleil - superbe duplex de 6 pièces avec une spacieuse terrasse

— Beausoleil 06240 —
1 490 000 €
124 m²
6 pièces
parkingbalcon/terrasseascenseuraccès handicapé

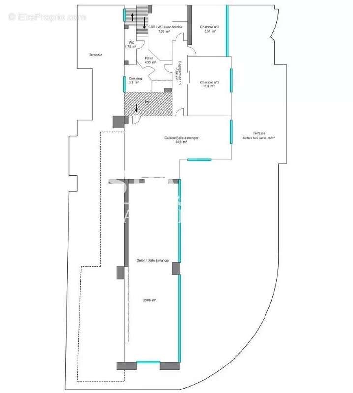
Situé à Beausoleil, au sein d’une belle résidence, découvrez ce duplex de 6 pièces bénéficiant d’une vaste terrasse.
Réparti sur deux niveaux, il se compose comme suit :

Au 3ᵉ étage : une entrée, un dégagement, une cuisine, une chambre et une salle d’eau.
Un escalier permet d’accéder au 4ᵉ étage, comprenant un palier, un salon-salle à manger, une cuisine-salle à manger, deux chambres, une salle de bains, des toilettes pour les invités ainsi qu’un dressing.

La grande terrasse, d’une superficie de 292 m², se trouve également au 4ᵉ étage et offre une vue imprenable sur la mer.

Pour plus de confort, l’appartement bénéficie de deux caves ainsi que d’un emplacement de parking.

Résidence bénéficiant d'une piscine et entretenue par un agent de propreté tous les jours.
Voir plus

Référence: 86361383

Prêt immobilier

Vous souhaitez connaître votre capacité d’emprunt et trouver le meilleur crédit immobilier ?
Réaliser une simulation gratuite

Appartement à BEAUSOLEIL
Appartement à BEAUSOLEIL
Appartement à BEAUSOLEIL
Appartement à BEAUSOLEIL
Appartement à BEAUSOLEIL
Appartement à BEAUSOLEIL
Appartement à BEAUSOLEIL
Appartement à BEAUSOLEIL
Appartement à BEAUSOLEIL
Appartement à BEAUSOLEIL
Appartement à BEAUSOLEIL
Appartement à BEAUSOLEIL
Appartement à BEAUSOLEIL
Appartement à BEAUSOLEIL
Appartement à BEAUSOLEIL
Appartement à BEAUSOLEIL
Appartement à BEAUSOLEIL
Appartement à BEAUSOLEIL
Appartement à BEAUSOLEIL
Appartement à BEAUSOLEIL
Appartement à BEAUSOLEIL
Appartement à BEAUSOLEIL
Appartement à BEAUSOLEIL
Appartement à BEAUSOLEIL
Ce site est protégé par reCAPTCHA la Politique de confidentialité et les Conditions d’utilisation de Google s’appliquent.
Obtenir un prêt immobilier au meilleur taux ?

En poursuivant votre navigation sans modifier vos paramètres, vous acceptez l'utilisation de cookies susceptibles de réaliser des statistiques de visite. Cliquez ici pour plus d'informations