Bénéficiez des services de nos partenaires locaux soigneusement sélectionnés
pour vous accompagner dans votre parcours d'achat immobilier

Appartement 63m² à cazeres

— Cazeres 31220 —
94 900 €
64 m²
3 pièces
parkingbalcon/terrasse

Nos partenaires locaux
Cazères, commune située à 45 minutes de Toulouse et facilement accessible par l'A64, dispose de toutes les commodités : commerces, écoles, gare SNCF, et services de proximité.

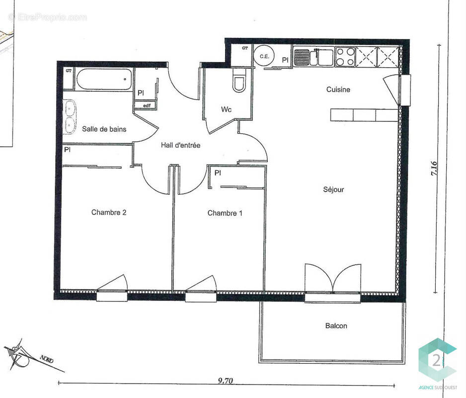
Nous proposons à la vente un appartement T3 en rez-de-chaussée, d'une surface de 63,80 m², avec une terrasse de 6,83 m².
Le bien se compose d'un séjour avec cuisine ouverte, de deux chambres avec placards intégrés, d'une salle de bains et de toilettes séparées.
Deux places de stationnement extérieures accompagnent l'appartement.

Le logement est vendu loué (locataires en place depuis 2013).

Informations financières :
Loyer : 602,85€ / mois (dont 96€ de provisions sur charges)
Taxe foncière : 650€ / an
Charges de copropriété : 1476,65€ / an (dont locatif 1130,21€ /an)



Honoraires à la charge du vendeur. Dans une copropriété de 1 lots. Aucune procédure n'est en cours. DPE en cours. Les informations sur les risques auxquels ce bien est exposé sont disponibles sur le site Géorisques : georisques.gouv.fr.
Voir plus

Référence: VA3209-C2ISUDOUEST2
Bien en copropriété. Nombre de lots : 1.
Honoraires à la charge du vendeur.
Barème des honoraires

Prêt immobilier

Vous souhaitez connaître votre capacité d’emprunt et trouver le meilleur crédit immobilier ?
Réaliser une simulation gratuite

Appartement à CAZERES
Appartement à CAZERES
Appartement à CAZERES
Appartement à CAZERES
Appartement à CAZERES
Appartement à CAZERES
Ce site est protégé par reCAPTCHA la Politique de confidentialité et les Conditions d’utilisation de Google s’appliquent.
Obtenir un prêt immobilier au meilleur taux ?

En poursuivant votre navigation sans modifier vos paramètres, vous acceptez l'utilisation de cookies susceptibles de réaliser des statistiques de visite. Cliquez ici pour plus d'informations