Bénéficiez des services de nos partenaires locaux soigneusement sélectionnés
pour vous accompagner dans votre parcours d'achat immobilier

Voir tous les partenaires locaux

Appartement 11m² à paris 16e arrondissement

— Paris-16e 75016 —
126 000 €
11 m²
1 pièce

Nos partenaires locaux
Village d'Auteuil - Molitor
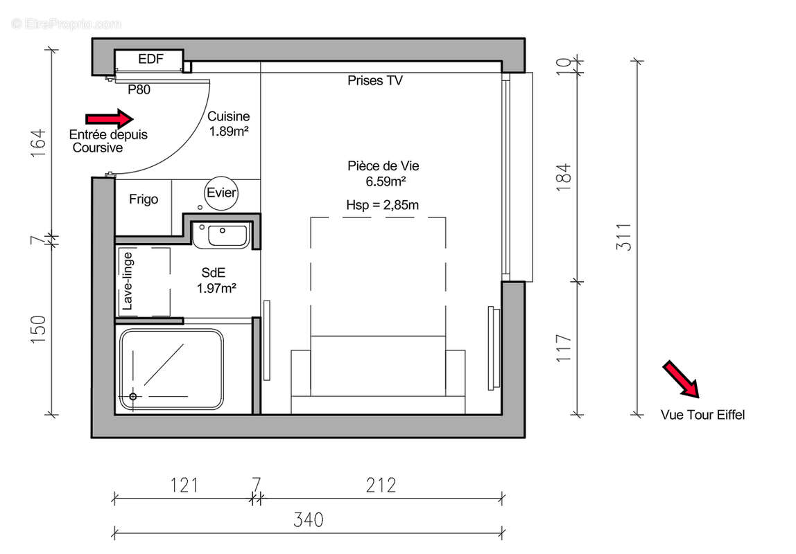
Lumineuse studette en dernier étage avec ascenseur*
11m2 vue dégagée, y compris sur la Tour Eiffel,
au sein d'une jolie voie privée piétonne, arborée, et avec fontaines en mosaïque bleue,
bel immeuble Art Déco (1934, architecte : E.Benier) avec super gardienne à résidence, et ascenseur.
Au 8e et dernier étage, Appartement CALME, belle hauteur sous plafond de 2m87,
entrée avec coin cuisine, séjour, et salle d'eau.
Fenêtres PVC double vitrage et volets pliants métalliques.
2 wc propres sur palier.
Vendu avec une cave en sous-sol
Charges 75€/mois (décomposées en 50€ + 25 € de chauffage collectif "CPCU" inclus)

Métro Michel-Ange Molitor (lignes 9 et 10) à 150m
Jardin des Serres d'Auteuil, Piscine Molitor, et Stade Roland-Garros à moins de 500m

Contact pour renseignements et visites : Yann HAMET [Coordonnées masquées]
Voir plus

Référence: 2276

Prêt immobilier

Vous souhaitez connaître votre capacité d’emprunt et trouver le meilleur crédit immobilier ?
Réaliser une simulation gratuite

Appartement à PARIS-16E
Appartement à PARIS-16E
Appartement à PARIS-16E
Appartement à PARIS-16E
Appartement à PARIS-16E
Ce site est protégé par reCAPTCHA la Politique de confidentialité et les Conditions d’utilisation de Google s’appliquent.
Obtenir un prêt immobilier au meilleur taux ?

En poursuivant votre navigation sans modifier vos paramètres, vous acceptez l'utilisation de cookies susceptibles de réaliser des statistiques de visite. Cliquez ici pour plus d'informations