Maison à rénover de 181 m2

— Villelongue-Dels-Monts 66740 —
191 000 €
181 m² / 568 m²
8 pièces
parkingbalcon/terrassejardin

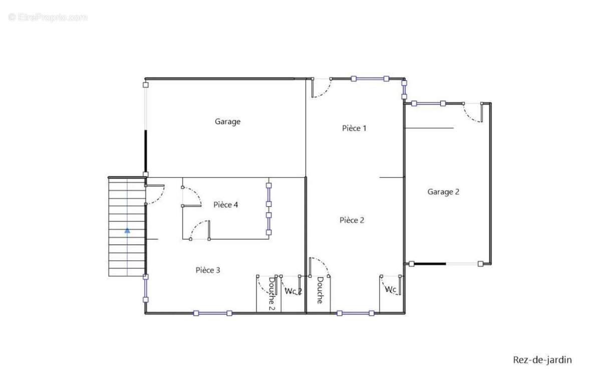
A villelongue-dels-monts, maison à rénover diviser en deux appartements de 181 m2 de surface habitable et 117 m2 de surface garage/annexe sur un terrain de 548 m2. Elle se compose :

Au rez-de-jardin : 2 garages et 2 pièces annexes pour un total de 117 m2

Au 1er demi étage : un appartement F4 de 89,57 m2 comprenant : une vaste entrée, un salon-séjour, une cuisine, une buanderie, un bureau, 3 chambres, 1 salle de bain, 1 wc séparé avec une terrasse de 26 m2

Au 2ème étage : un appartement F4 de 91,43 m2 comprenant : une vaste entrée, un salon-séjour, une cuisine, une buanderie, un bureau, 3 chambres, 1 salle de bain, 1 wc séparé avec une terrasse de 26 m2

Les informations sur les risques auxquels ce bien est exposé sont disponibles sur le site Géorisques : georisques.gouv.fr

Annonce proposée par la SARL IMMOBIEN - (ST-GENIS-IMMOBILIER)
1 rue Georges Clemenceau 66740 ST GENIS DES FONTAINES
Voir plus

Référence: 2468
Barème des honoraires

Prêt immobilier

Vous souhaitez connaître votre capacité d’emprunt et trouver le meilleur crédit immobilier ?
Réaliser une simulation gratuite

Maison à VILLELONGUE-DELS-MONTS
Maison à VILLELONGUE-DELS-MONTS
Maison à VILLELONGUE-DELS-MONTS
Maison à VILLELONGUE-DELS-MONTS
Maison à VILLELONGUE-DELS-MONTS
Maison à VILLELONGUE-DELS-MONTS
Maison à VILLELONGUE-DELS-MONTS
Maison à VILLELONGUE-DELS-MONTS
Maison à VILLELONGUE-DELS-MONTS
Maison à VILLELONGUE-DELS-MONTS
Maison à VILLELONGUE-DELS-MONTS
Maison à VILLELONGUE-DELS-MONTS
Maison à VILLELONGUE-DELS-MONTS
Maison à VILLELONGUE-DELS-MONTS
Ce site est protégé par reCAPTCHA la Politique de confidentialité et les Conditions d’utilisation de Google s’appliquent.
Obtenir un prêt immobilier au meilleur taux ?

En poursuivant votre navigation sans modifier vos paramètres, vous acceptez l'utilisation de cookies susceptibles de réaliser des statistiques de visite. Cliquez ici pour plus d'informations