Bénéficiez des services de nos partenaires locaux soigneusement sélectionnés
pour vous accompagner dans votre parcours d'achat immobilier

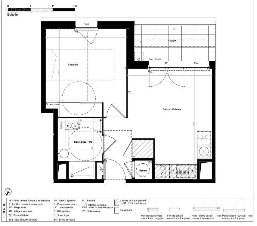
Appartement 39m² à toulouse

— Toulouse 31200 —
230 000 €
40 m²
2 pièces
parkingbalcon/terrasseascenseur

Nos partenaires locaux
Appartement T2 avec Balcon et Parking – Résidence de Standing 2024

Un cadre de vie moderne et lumineux
Coup de coeur assuré pour ce superbe T2 de 39,92 m² situé au 1er étage d'une résidence récente (2024) avec ascenseur. Cet appartement non meublé vous séduira par ses prestations de qualité.

Les atouts de ce bien :
Séjour spacieux de 20 m²
Cuisine américaine entièrement aménagée
Chambre avec placard
Salle d'eau moderne avec WC
Balcon de 6 m²
Place de parking intérieur sécurisée
Un emplacement privilégié
Idéalement situé dans un quartier calme et parfaitement desservi :
À 2 min à pied :
Commerces alimentaires et restaurants
Arrêts de bus et station de métro
À proximité :
Crèche (10 min)
Collège (15 min)
Parc et espaces verts (10 min)
Opportunité à saisir
Appartement en excellent état, alliant confort, modernité et praticité au quotidien.
Parfait pour un premier achat, un investissement locatif ou un pied-à-terre.

Contactez-nous dès maintenant pour organiser votre visite !
Les informations sur les risques auxquels ce bien est exposé sont disponibles sur le site Géorisques : www.georisques.gouv.fr

Dans une copropriété de 61 lots. Aucune procédure n'est en cours. Non soumis au DPE. Les informations sur les risques auxquels ce bien est exposé sont disponibles sur le site Géorisques : georisques.gouv.fr.
Voir plus

Référence: 12031-LFCONSEIL
Bien en copropriété. Nombre de lots : 61.
Honoraires à la charge de l'acquéreur.
Barème des honoraires

Prêt immobilier

Vous souhaitez connaître votre capacité d’emprunt et trouver le meilleur crédit immobilier ?
Réaliser une simulation gratuite

Appartement à TOULOUSE
Appartement à TOULOUSE
Appartement à TOULOUSE
Ce site est protégé par reCAPTCHA la Politique de confidentialité et les Conditions d’utilisation de Google s’appliquent.
Obtenir un prêt immobilier au meilleur taux ?

En poursuivant votre navigation sans modifier vos paramètres, vous acceptez l'utilisation de cookies susceptibles de réaliser des statistiques de visite. Cliquez ici pour plus d'informations