Bénéficiez des services de nos partenaires locaux soigneusement sélectionnés
pour vous accompagner dans votre parcours d'achat immobilier

Appartement 62m² à toulouse

— Toulouse 31200 —
380 900 €
63 m²
3 pièces
parkingbalcon/terrasseascenseur

Nos partenaires locaux
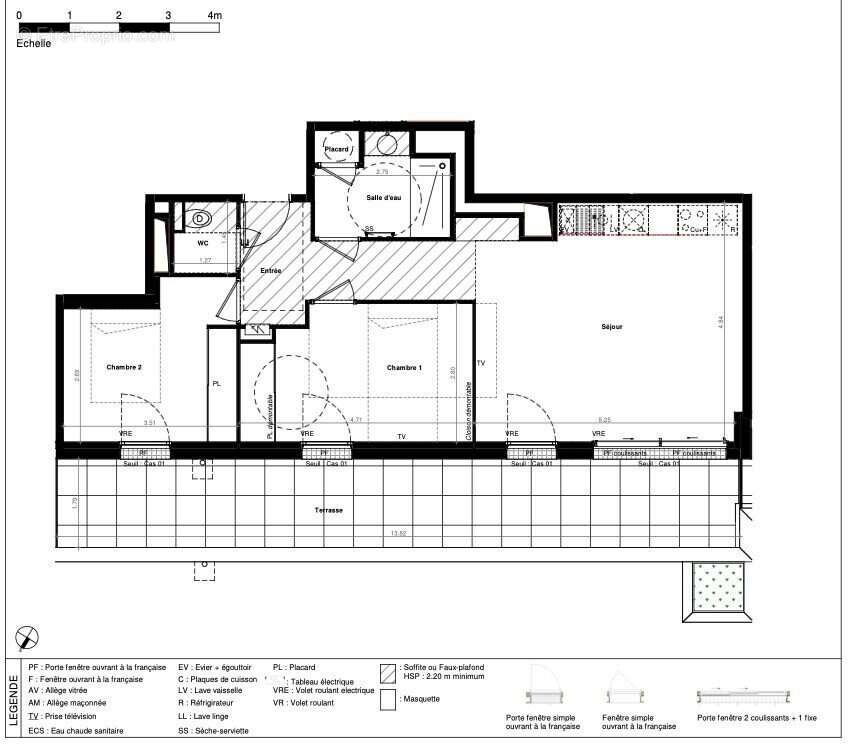
Appartement T3 de 62 m² habitable et 87,88 m² de surface utile avec Grande Terrasse – Vue Dégagée et Standing

Un espace de vie lumineux au coeur de la ville
Superbe T3 situé au 5ème étage d'une résidence de standing de 2014, en excellent état. Cet appartement bénéficie d'une exposition plein sud offrant une luminosité exceptionnelle et une vue imprenable sur la ville.
Les points forts :
Séjour spacieux de 25 m², idéal pour recevoir
Cuisine américaine aménagée
2 chambres confortables
Salle d'eau moderne avec WC indépendant
Terrasse de 25 m² – Véritable atout pour profiter de l'extérieur
Chauffage individuel
Double vitrage PVC
Ascenseur et accessibilité PMR
Parties communes impeccables
Un quartier pratique et vivant
Emplacement de choix avec toutes les commodités à portée de main :

À 2 min à pied :
Commerces de proximité et restaurants
Arrêts de bus et station de métro
Le bien idéal pour :
Une famille recherchant confort et fonctionnalité
Un couple souhaitant des espaces généreux
Un investisseur exigeant
Cet appartement combine tous les avantages : volumes agréables, grande terrasse pour prolonger votre espace de vie, luminosité toute la journée, et prestations de qualité dans une résidence récente et bien entretenue.

Contactez-nous pour organiser votre visite !
Les informations sur les risques auxquels ce bien est exposé sont disponibles sur le site Géorisques : www.georisques.gouv.fr

Dans une copropriété de 61 lots. Aucune procédure n'est en cours. Non soumis au DPE. Les informations sur les risques auxquels ce bien est exposé sont disponibles sur le site Géorisques : georisques.gouv.fr.
Voir plus

Référence: 12032-LFCONSEIL
Bien en copropriété. Nombre de lots : 61.
Honoraires à la charge de l'acquéreur.
Barème des honoraires

Prêt immobilier

Vous souhaitez connaître votre capacité d’emprunt et trouver le meilleur crédit immobilier ?
Réaliser une simulation gratuite

Appartement à TOULOUSE
Appartement à TOULOUSE
Appartement à TOULOUSE
Appartement à TOULOUSE
Ce site est protégé par reCAPTCHA la Politique de confidentialité et les Conditions d’utilisation de Google s’appliquent.
Obtenir un prêt immobilier au meilleur taux ?

En poursuivant votre navigation sans modifier vos paramètres, vous acceptez l'utilisation de cookies susceptibles de réaliser des statistiques de visite. Cliquez ici pour plus d'informations