Bénéficiez des services de nos partenaires locaux soigneusement sélectionnés
pour vous accompagner dans votre parcours d'achat immobilier

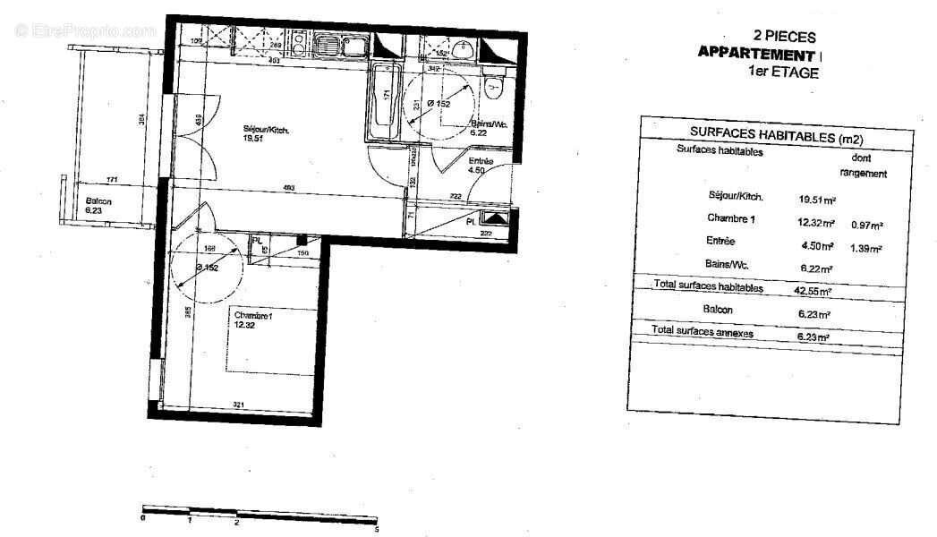
Appartement 42m² à toulouse

— Toulouse 31100 —
69 500 €
43 m²
2 pièces
parkingbalcon/terrasseascenseur

Nos partenaires locaux
Forom Immobilier vous propose en exclusivité cet appartement T2 d'une surface d'environ 42,55 m² situé au 1er étage avec ascenseur dans une résidence de 2013 sur la commune de Toulouse, secteur Bellefontaine.

Libre de toute occupation au plus tard le 16/02/2026 ! Idéal pour un premier achat ou pour un investissement locatif.

Ce bien se compose de la façon suivante : un salon donnant sur le balcon, une cuisine ouverte équipée, une chambre avec placard, une salle de bains avec WC, un balcon d'environ et une place de parking en sous-sol.

Informations clés :

- Chauffage et eau chaude individuels au gaz
- Diagnostic de Performance Énergétique : C
- Montant des charges annuelles : 1 517€
- Taxe Foncière 2025 : 1 014€
Honoraires charges vendeur.

Honoraires à la charge du vendeur. Dans une copropriété de 100 lots. Aucune procédure n'est en cours. Classe énergie C, Classe climat C Montant estimé des dépenses annuelles d'énergie pour un usage standard : entre 400.00 € et 590.00 € sur les années 2021, 2022 et 2023 (abonnements compris). Les informations sur les risques auxquels ce bien est exposé sont disponibles sur le site Géorisques : georisques.gouv.fr.
Voir plus

Référence: 3879-FOROM
Bien en copropriété. Nombre de lots : 100.
Honoraires à la charge du vendeur.
Barème des honoraires
DPE
A
B
C
D
E
F
G
GES
A
B
C
D
E
F
G

Prêt immobilier

Vous souhaitez connaître votre capacité d’emprunt et trouver le meilleur crédit immobilier ?
Réaliser une simulation gratuite

Appartement à TOULOUSE
Appartement à TOULOUSE
Ce site est protégé par reCAPTCHA la Politique de confidentialité et les Conditions d’utilisation de Google s’appliquent.
Obtenir un prêt immobilier au meilleur taux ?

En poursuivant votre navigation sans modifier vos paramètres, vous acceptez l'utilisation de cookies susceptibles de réaliser des statistiques de visite. Cliquez ici pour plus d'informations