Pas de parking à Saint-Jean-De-Gonville pour le moment. Découvrez dès maintenant les parkings dans le département Ain.
Bénéficiez des services de nos partenaires locaux soigneusement sélectionnés
pour vous accompagner dans votre parcours d'achat immobilier

Coup de coeur : villa de maçon + piscine

— Grasse 06130 —
849 000 €
255 m² / 1 552 m²
6 pièces
parkingbalcon/terrassejardinpiscine

Nos partenaires locaux
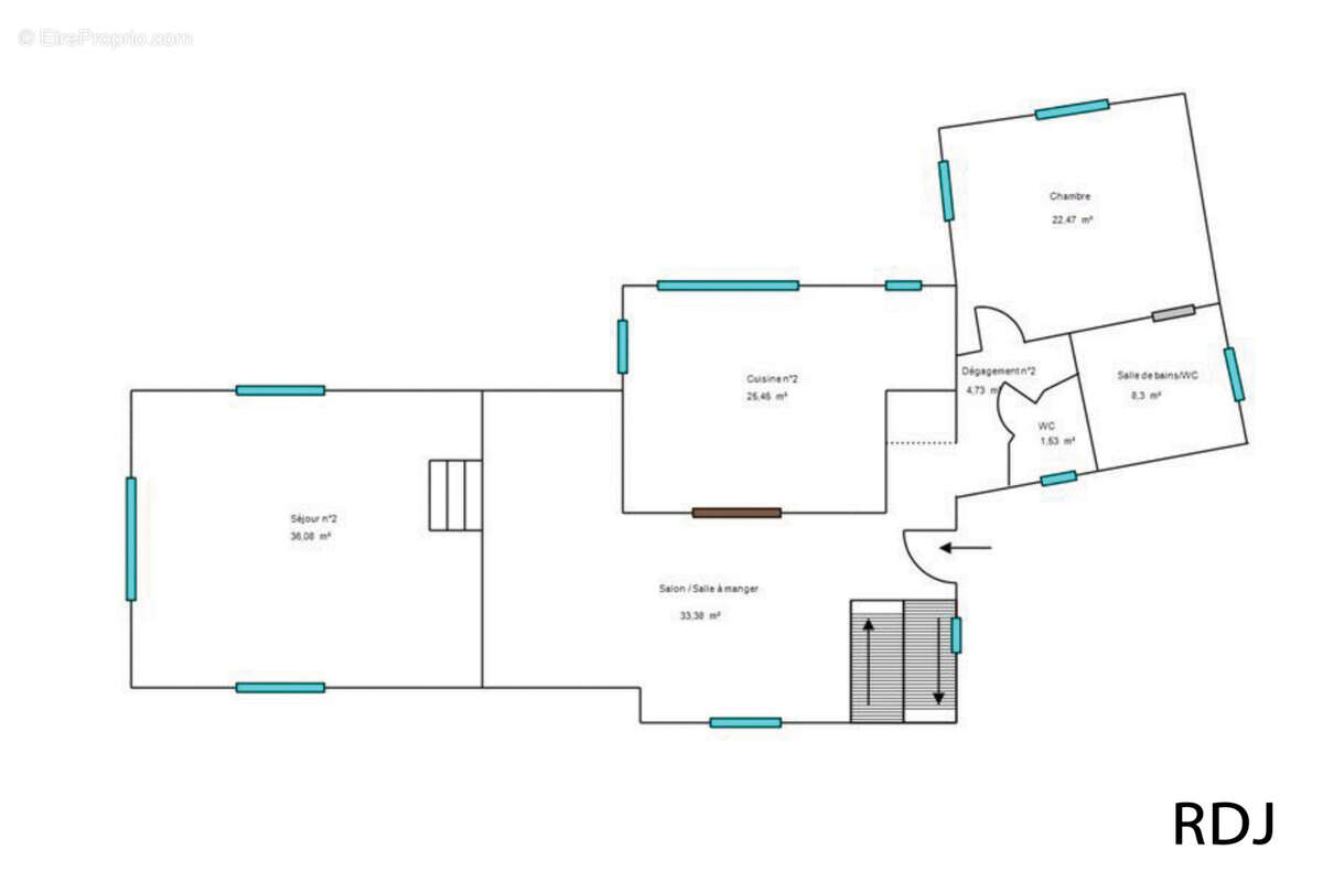
CO-EXCLU - Photo embellie par IA — n’hésitez pas à demander les originales. Villa de maçon édifiée entre 2007 et 2014 sur une parcelle de 1 552 m2, idéalement située à proximité de Briconaute, Leclerc etc... Exposition dominante Sud-Est, nombreuses ouvertures, aucun vis-à-vis et aucun travaux à prévoir. De beaux matériaux nobles ont été utilisés pour la conception de cette magnifique villa. Cette maison est édifiée sur 3 niveaux comprenant : - Au 1 er niveau : garage et sous-sol aménagée en appartement de 3 pièces composé de salle à manger, cuisine ouverte, 2 chambres, salle d'eau avec water-closet - Au 2ème niveau : cuisine, salle à manger, salon, une chambre parentale avec salle de bains, water-closet invités. - Au 3ème niveau : 3 chambres, bureau, une salle de bains et water closet
Quelques surfaces : - Surface Carrez : 254 m2 - Surface plancher : 320 m2 - Pièce de vie : environ 80 m2 - Garage : 54 m2
Quelques prestations : - Cheminée double foyer - Climatisation gainable réversible - Menuiseries à galandage - Domotique pour les volets roulants - Fibre installée dans la maison - Tout-à-l’égout - Terrain entièrement cloturé - Chambre de plain pied
Voir plus

Référence: 2022266
Barème des honoraires
DPE
A
B
C
D
E
F
G
GES
A
B
C
D
E
F
G

Prêt immobilier

Vous souhaitez connaître votre capacité d’emprunt et trouver le meilleur crédit immobilier ?
Réaliser une simulation gratuite

Maison à GRASSE
Maison à GRASSE
Maison à GRASSE
Maison à GRASSE
Maison à GRASSE
Maison à GRASSE
Maison à GRASSE
Maison à GRASSE
Maison à GRASSE
Maison à GRASSE
Maison à GRASSE
Maison à GRASSE
Maison à GRASSE
Maison à GRASSE
Maison à GRASSE
Maison à GRASSE
Maison à GRASSE
Ce site est protégé par reCAPTCHA la Politique de confidentialité et les Conditions d’utilisation de Google s’appliquent.
Obtenir un prêt immobilier au meilleur taux ?

En poursuivant votre navigation sans modifier vos paramètres, vous acceptez l'utilisation de cookies susceptibles de réaliser des statistiques de visite. Cliquez ici pour plus d'informations