Appartement 2 pièces / 29 m² / 55 000 eur / selonnet

— Selonnet 04140 —
55 000 €
29 m²
2 pièces

Le pied-à-terre idéal pour vivre la montagne toute l'année !
Découvrez cet agréable appartement de 29 m², situé en plein centre de la station de Chabanon, au cœur de la magnifique vallée de la Blanche.
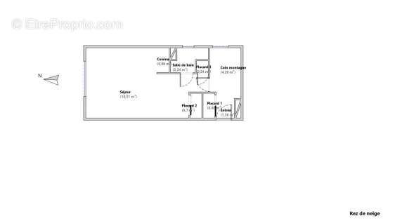
Ce bien sans balcon, parfaitement agencé, offre tout le confort nécessaire pour des séjours à la montagne en toute saison.

Il se compose de :
Une entrée avec placards de rangement,
Un coin montagne avec lits superposés, idéal pour les enfants ou les invités,
Un séjour lumineux de 19 m² faisant office de salon et d'espace repas,
Un coin cuisine fonctionnel,
Une salle de bain avec douche,
WC séparés.

Cet appartement séduit par son emplacement central dans la station, à proximité immédiate des pistes de ski, commerces et animations.
Un cadre de vie exceptionnel toute l'année :

En hiver : ski alpin, ski de fond, randonnées en raquettes, chiens de traîneaux et ambiance chaleureuse de station familiale.
En été : randonnées, VTT, parapente, équitation, baignades dans les lacs de Serre-Ponçon ou Saint-Léger, et découverte des villages pittoresques des Alpes-de-Haute-Provence.
Toute l'année : un environnement naturel préservé, des événements culturels et activités de plein air dans la vallée de la Blanche.

À seulement 45 minutes de Gap et 40 minutes de Barcelonnette, Chabanon est une destination quatre saisons facile d'accès, idéale pour les amoureux de la montagne.

Emplacement cœur de station, pratique et vivant,
Appartement fonctionnel et chaleureux,
Bon potentiel locatif pour les séjours touristiques, > sur palce Service de Conciergerie avec DTR Prestat Services - Chabanon
Destination sport & détente toute l'année.

à découvrir sans tarder !
Parfait pour un investissement plaisir ou une résidence secondaire à la montagne. Taxe foncière : 468 EUR Charges courantes annuelles : 960. Nombre de lots dans la co-propriété : 345. Honoraires d`agence TTC inclus charge acquéreur : 10,00 %. Contactez votre conseiller FIJ immobilier : Madame Sabine AUZET-PEY. Tél : [Coordonnées masquées]. Mail : [Coordonnées masquées]. Agent commercial immatriculé au RSAC de : Manosque sous le numéro : 884 027 921. Spécialiste sur le secteur de : Alpes-de-Haute-Provence et ses environs.
Voir plus

Référence: 2013759
Bien en copropriété.
Honoraires d'agence de 10% à la charge de l'acquéreur
DPE
A
B
C
D
E
F
G
GES
A
B
C
D
E
F
G

Prêt immobilier

Vous souhaitez connaître votre capacité d’emprunt et trouver le meilleur crédit immobilier ?
Réaliser une simulation gratuite

Appartement à SELONNET
Appartement à SELONNET
Appartement à SELONNET
Appartement à SELONNET
Appartement à SELONNET
Appartement à SELONNET
Appartement à SELONNET
Appartement à SELONNET
Appartement à SELONNET
Appartement à SELONNET
Appartement à SELONNET
Appartement à SELONNET
Appartement à SELONNET
Appartement à SELONNET
Appartement à SELONNET
Appartement à SELONNET
Appartement à SELONNET
Appartement à SELONNET
Appartement à SELONNET
Ce site est protégé par reCAPTCHA la Politique de confidentialité et les Conditions d’utilisation de Google s’appliquent.
Obtenir un prêt immobilier au meilleur taux ?

En poursuivant votre navigation sans modifier vos paramètres, vous acceptez l'utilisation de cookies susceptibles de réaliser des statistiques de visite. Cliquez ici pour plus d'informations