Bénéficiez des services de nos partenaires locaux soigneusement sélectionnés
pour vous accompagner dans votre parcours d'achat immobilier

Voir tous les partenaires locaux

Nansouty - comme une maison - jardin 180 m2 - piscine - prestations haut de gamme - calme

— Bordeaux 33000 —
675 000 €
146 m²
6 pièces
parking

Nos partenaires locaux
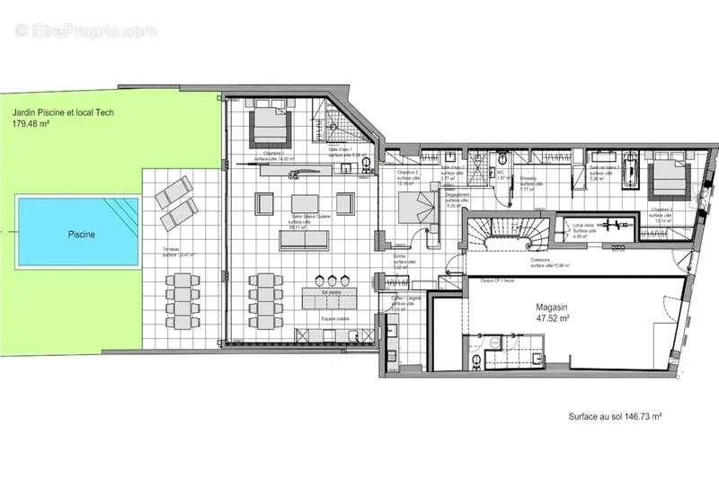
Entre la Place Nansouty et la barrière de Toulouse, Optimhome vous présente ce beau T5 de 146 m² habitables avec son grand jardin et sa piscine.

Rénovée avec soin en 2019, l'appartement à un cachet indémodable et propose des prestations haut de gamme : sol en travertin, matériaux nobles, électroménager Miele, KitchenAid, Liebherr...
Il comprend une entrée avec rangements sur toute la longueur, un magnifique espace de vie de plus de 58 m² avec de grandes ouvertures sur le jardin, une cuisine ouverte avec îlot central, une buanderie avec évier, trois chambres confortables avec penderie intégrée (12, 14 et 15 m²), un grand dressing, une salle d'eau avec wc, une salle de bains et un second wc indépendant.
Côté extérieur, vous pourrez profiter d'un jardin paysagé de 180 m² au calme, avec terrasse, piscine au sel et local pool house

En outre, vous disposerez au sous-sol d'une cave saine et confortable de 23 m².
Enfin, côté stationnement, une place de parking dans l'immeuble voisin (1 min à pied) est également proposée, en sus du prix indiqué (30.000€).
Vous avez également la possibilité de louer deux places supplémentaires situées à 5 min à pied (75€/mois).

L'appartement est situé à proximité de la place Nansouty et de toutes commodités (commerces de quartier, supermarchés, écoles...), avec 4 lignes de bus disponibles (5 / 9 / 23 / TBNight). Nombre de lots de la copropriété: 4, Montant moyen de la quote-part annuelle de charges (budget prévisionnel) : 0€ soit 0€ par mois. Les honoraires d'agence sont à la charge de l'acquéreur, soit 3,70% TTC du prix hors honoraires.
Les informations sur les risques auxquels ce bien est exposé sont disponibles sur le site Géorisques : www. georisques. gouv. fr.

Contactez Romain BAUMARD Entrepreneur Individuel, Agent commercial OptimHome (RSAC N°901 553 610 Greffe de BORDEAUX) [Coordonnées masquées] (réf. 594953 )
Voir plus

Référence: 830033040632
Bien en copropriété. Nombre de lots : 4.
DPE
A
B
C
D
E
F
G
GES
A
B
C
D
E
F
G

Prêt immobilier

Vous souhaitez connaître votre capacité d’emprunt et trouver le meilleur crédit immobilier ?
Réaliser une simulation gratuite

Appartement à BORDEAUX
Appartement à BORDEAUX
Appartement à BORDEAUX
Appartement à BORDEAUX
Appartement à BORDEAUX
Appartement à BORDEAUX
Appartement à BORDEAUX
Appartement à BORDEAUX
Appartement à BORDEAUX
Appartement à BORDEAUX
Appartement à BORDEAUX
Ce site est protégé par reCAPTCHA la Politique de confidentialité et les Conditions d’utilisation de Google s’appliquent.
Obtenir un prêt immobilier au meilleur taux ?

En poursuivant votre navigation sans modifier vos paramètres, vous acceptez l'utilisation de cookies susceptibles de réaliser des statistiques de visite. Cliquez ici pour plus d'informations