Bénéficiez des services de nos partenaires locaux soigneusement sélectionnés
pour vous accompagner dans votre parcours d'achat immobilier

Vente maison 6 pièces de 100m² - 95270 noisy-sur-oise

— Noisy-Sur-Oise 95270 —
332 800 €
100 m² / 500 m²
6 pièces
parkingjardin

Nos partenaires locaux
Casavo vous propose à la vente cette maison de 6 pièces d'environ 100 m², entièrement rénovée en 2023, située Chemin de la Montagne à Noisy-sur-Oise, dans un cadre calme et verdoyant. Dès l'entrée, on ressent une atmosphère chaleureuse et accueillante, lumineuse et sereine.

Confortable et moderne, cette maison offre un fort potentiel d'agrandissement : possibilité de créer une terrasse fermée d'environ 30 m² ou d'ajouter une suite parentale sur le côté. Des maquettes du projet d'agrandissement sont disponibles pour vous permettre de visualiser le potentiel et d'imaginer votre futur espace de vie. Vous achetez ainsi une maison de 100 m² avec le potentiel d'en faire 130 m², au prix d'une maison de 100 m².

Le rez-de-chaussée comprend un salon chaleureux avec poêle à bois récent et chauffage électrique, une cuisine moderne et entièrement équipée ainsi qu'un garage de 25 m².

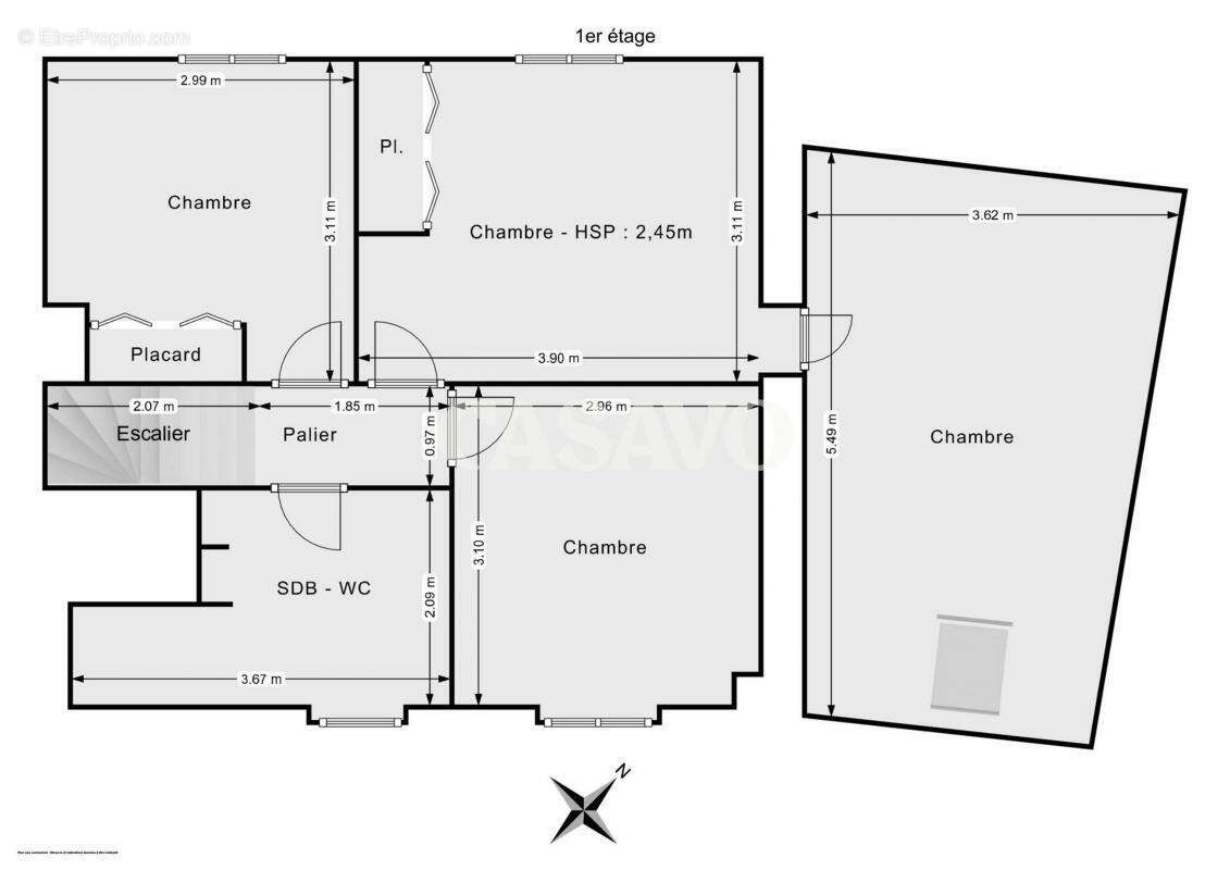
À l'étage, vous trouverez quatre chambres, dont une chambre passante qui peut servir de bureau, dressing ou espace de transition selon vos besoins. La maison dispose également d'une salle d'eau avec douche à l'italienne, d'une salle de bain et de deux WC, dont un séparé, offrant confort et fonctionnalité pour toute la famille.

À l'extérieur, le jardin et la terrasse invitent à profiter des beaux jours, et une cabane de jardin permet de ranger facilement vos affaires. Une photo montre la vue actuelle de l'arrière de la maison, avant aménagement de la future terrasse et du projet d'agrandissement, afin de mieux apprécier le potentiel du bien. Le stationnement est simple grâce au garage, à la place devant la maison et aux emplacements du clos privé de seulement cinq habitations.

La taxe foncière est de 1 040 € par an. Le DPE est en cours ; il y a deux ans, avant l'isolation des combles, il était de catégorie D.

Disponible immédiatement, cette maison est une opportunité rare. Vous n'achetez pas seulement une maison… vous investissez dans un cadre de vie unique, un lieu où il fait bon vivre au quotidien.

Intéressé par ce bien ? Plus d'informations sur le site de Casavo.
Voir plus

Référence: 48847
Honoraires à la charge du vendeur.

Prêt immobilier

Vous souhaitez connaître votre capacité d’emprunt et trouver le meilleur crédit immobilier ?
Réaliser une simulation gratuite

Maison à NOISY-SUR-OISE
Maison à NOISY-SUR-OISE
Maison à NOISY-SUR-OISE
Maison à NOISY-SUR-OISE
Maison à NOISY-SUR-OISE
Maison à NOISY-SUR-OISE
Maison à NOISY-SUR-OISE
Maison à NOISY-SUR-OISE
Maison à NOISY-SUR-OISE
Maison à NOISY-SUR-OISE
Maison à NOISY-SUR-OISE
Maison à NOISY-SUR-OISE
Maison à NOISY-SUR-OISE
Maison à NOISY-SUR-OISE
Ce site est protégé par reCAPTCHA la Politique de confidentialité et les Conditions d’utilisation de Google s’appliquent.
Obtenir un prêt immobilier au meilleur taux ?

En poursuivant votre navigation sans modifier vos paramètres, vous acceptez l'utilisation de cookies susceptibles de réaliser des statistiques de visite. Cliquez ici pour plus d'informations