Propriété au calme avec grand terrain constructible et potentiel d’aménagement

— Bonifacio 20169 —
1 200 000 €
139 m²
5 pièces
parking

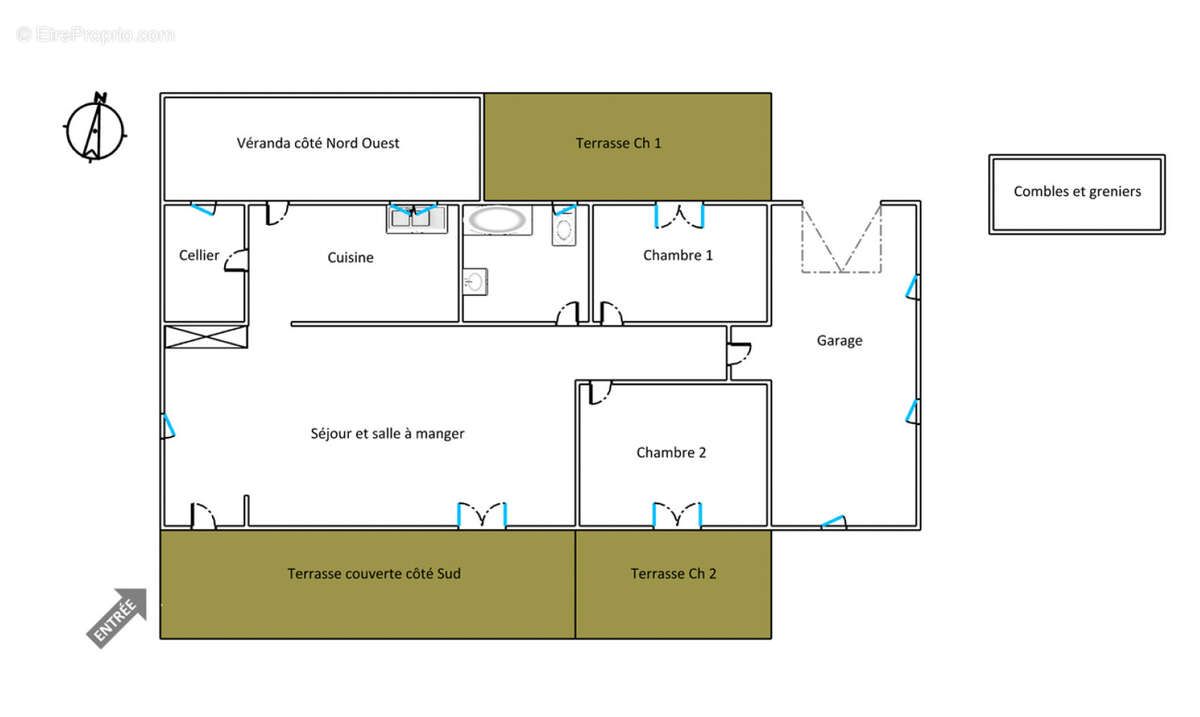
Accasà vous propose, au cœur d’un environnement naturel préservé, une propriété rare à 10 minutes du port de Bonifacio et 5 min de la plage de Canetto. L’ensemble se compose d’une maison principale de 103 m2 et d’une dépendance de 38 m2, édifiées sur un vaste terrain arboré de plus de 8 000 m2 planté d’oliviers et bordé de murs en pierres. Ce cadre paisible séduit par son atmosphère authentique et la qualité de son environnement, loin de toute nuisance.
La maison principale offre un salon avec cheminée et climatisation, une cuisine indépendante prolongée par un cellier, deux chambres, une salle de bain, une veranda et un vaste garage. Une terrasse exposée Sud partiellement couverte et une cuisine extérieure permettent de profiter pleinement du cadre enhanteur de ce bien. La dépendance, récente et de plain-pied, habillée de pierres dispose d’un séjour climatisé avec cuisine, d’une chambre et d’une salle d’eau. Ces deux unités distinctes permettent d’accueillir famille, amis ou de générer un revenu locatif saisonnier. Un atelier en bois de 47 m2 offre un vaste espace de stockage.
Le terrain, classé en zone UB dans le projet de PLU de Bonifacio, présente un fort potentiel de construction, sous réserve des règles d’urbanisme en vigueur. Cet atout exceptionnel ouvre la voie à un projet de division, de développement résidentiel ou à une extension harmonieuse du bâti existant.
Cette propriété représente une opportunité rare sur le marché bonifacien, alliant tranquillité absolue, cadre verdoyant et grand potentiel d’évolution. Idéale pour les amoureux de nature souhaitant s’installer dans un lieu privilégié ou pour un investisseur en quête d’un projet à forte valeur ajoutée.
Voir plus

Référence: 146
Honoraires d'agence de 5% à la charge de l'acquéreur
Barème des honoraires
DPE
A
B
C
D
E
F
G
GES
A
B
C
D
E
F
G

Prêt immobilier

Vous souhaitez connaître votre capacité d’emprunt et trouver le meilleur crédit immobilier ?
Réaliser une simulation gratuite

Maison à BONIFACIO
Maison à BONIFACIO
Maison à BONIFACIO
Maison à BONIFACIO
Maison à BONIFACIO
Maison à BONIFACIO
Maison à BONIFACIO
Maison à BONIFACIO
Maison à BONIFACIO
Maison à BONIFACIO
Maison à BONIFACIO
Maison à BONIFACIO
Maison à BONIFACIO
Maison à BONIFACIO
Maison à BONIFACIO
Maison à BONIFACIO
Maison à BONIFACIO
Maison à BONIFACIO
Maison à BONIFACIO
Maison à BONIFACIO
Maison à BONIFACIO
Maison à BONIFACIO
Maison à BONIFACIO
Maison à BONIFACIO
Maison à BONIFACIO
Maison à BONIFACIO
Maison à BONIFACIO
Maison à BONIFACIO
Maison à BONIFACIO
Maison à BONIFACIO
Maison à BONIFACIO
Maison à BONIFACIO
Maison à BONIFACIO
Maison à BONIFACIO
Maison à BONIFACIO
Maison à BONIFACIO
Maison à BONIFACIO
Maison à BONIFACIO
Maison à BONIFACIO
Maison à BONIFACIO
Maison à BONIFACIO
Maison à BONIFACIO
Maison à BONIFACIO
Ce site est protégé par reCAPTCHA la Politique de confidentialité et les Conditions d’utilisation de Google s’appliquent.
Obtenir un prêt immobilier au meilleur taux ?

En poursuivant votre navigation sans modifier vos paramètres, vous acceptez l'utilisation de cookies susceptibles de réaliser des statistiques de visite. Cliquez ici pour plus d'informations