Bénéficiez des services de nos partenaires locaux soigneusement sélectionnés
pour vous accompagner dans votre parcours d'achat immobilier

Appartement 87m² à villenave-d'ornon

— Villenave-D'ornon 33140 —
400 000 €
88 m²
4 pièces
parkingbalcon/terrasseascenseur

Nos partenaires locaux
APPARTEMENT EN ATTIQUE AVEC DOUBLE TERRASSE – VILLENAVE D'ORNON

Situé dans un quartier recherché de Villenave d'Ornon, cet élégant appartement de 4 pièces prend place au dernier étage d'une résidence intimiste au design contemporain.

Son emplacement est idéal : au pied du tramway et à proximité immédiate des commerces, écoles (de la maternelle au lycée), infrastructures sportives, espaces verts et même d'un musée. Tout se fait à pied, pour une vie quotidienne à la fois pratique et agréable.

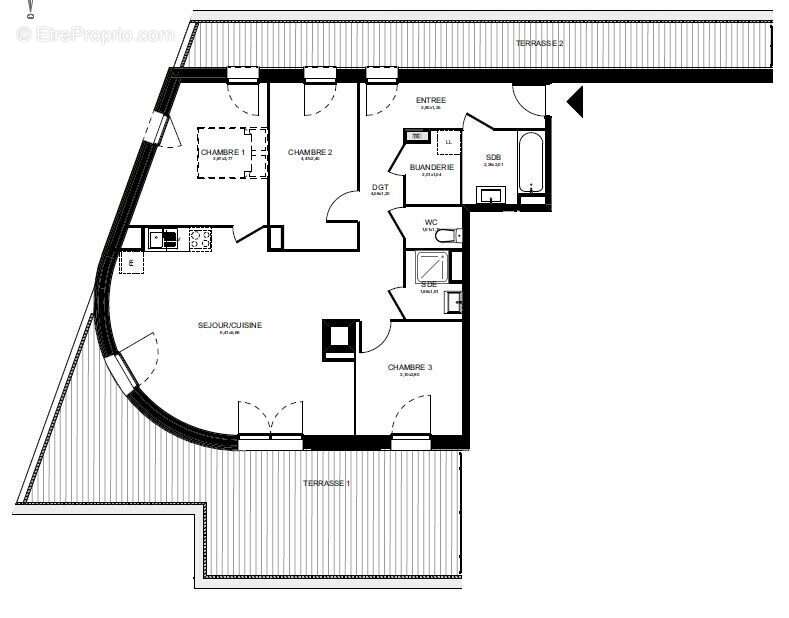
L'appartement se compose d'une entrée, d'une buanderie, d'un vaste séjour avec cuisine ouverte baigné de lumière grâce à sa double exposition, de trois chambres, d'une salle de bains, d'une salle d'eau et d'un WC indépendant.

Véritable atout, chaque pièce s'ouvre sur une large terrasse sans vis-à-vis, offrant un espace extérieur généreux et paisible pour profiter pleinement des beaux jours.

Deux places de stationnement privatives et sécurisées complètent l'ensemble.

Un bien rare sur le secteur, idéal en résidence principale, alliant confort, sérénité et dynamisme urbain.

APPARTEMENT EN ATTIQUE AVEC DOUBLE TERRASSE – VILLENAVE D'ORNON

Honoraires à la charge du vendeur. Dans une copropriété de 26 lots. Aucune procédure n'est en cours. DPE en cours. Les informations sur les risques auxquels ce bien est exposé sont disponibles sur le site Géorisques : georisques.gouv.fr.

Votre conseiller RH Patrimoine : Marc VEYRET
Agent commercial (Entreprise individuelle)
Voir plus

Référence: VA3189-RHPATRI
Bien en copropriété. Nombre de lots : 26.
Honoraires à la charge du vendeur.
Barème des honoraires

Prêt immobilier

Vous souhaitez connaître votre capacité d’emprunt et trouver le meilleur crédit immobilier ?
Réaliser une simulation gratuite

Appartement à VILLENAVE-D'ORNON
Appartement à VILLENAVE-D'ORNON
Appartement à VILLENAVE-D'ORNON
Appartement à VILLENAVE-D'ORNON
Ce site est protégé par reCAPTCHA la Politique de confidentialité et les Conditions d’utilisation de Google s’appliquent.
Obtenir un prêt immobilier au meilleur taux ?

En poursuivant votre navigation sans modifier vos paramètres, vous acceptez l'utilisation de cookies susceptibles de réaliser des statistiques de visite. Cliquez ici pour plus d'informations