Bénéficiez des services de nos partenaires locaux soigneusement sélectionnés
pour vous accompagner dans votre parcours d'achat immobilier

Voir tous les partenaires locaux

Secteur contades - 5-6 pieces à vendre

— Strasbourg 67000 —
699 000 €
135 m²
6 pièces
parkingbalcon/terrasse

Nos partenaires locaux
PROX. PARC DES CONTADES
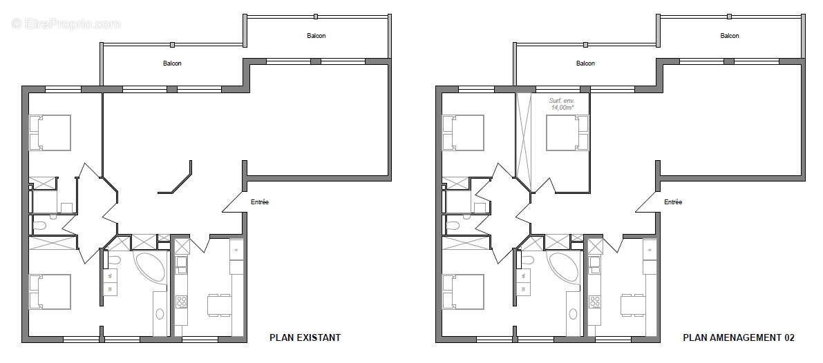
Venez découvrir ce 5-6 PIECES rare sur le marché, alliant confort et élégance à deux pas du Parc des Contades !
Situé en étage élevé dans un immeuble de standing, au calme, il séduit par ses volumes généreux et son élégance intemporelle ; un vaste salon de 45 m2 prolongé d'un balcon filant de 23 m2, parfait pour profiter du soleil.
Une cuisine indépendante équipée, poss. trois chambres (dont une suite parentale avec salle de bains), un bureau ouvert sur le séjour (permettant de réaliser une troisième chambre).
Cet appartement de 134,50 m2 avec chêne massif, cave spacieuse et une place de stationnement en sous-sol, ne peut que vous séduire à proximité du centre-ville et des transports en commun
Voir plus

Référence: 4026
Bien en copropriété. Nombre de lots : 16. Charges de copropriété : 2996 €.
Honoraires d'agence de 5% à la charge de l'acquéreur
Barème des honoraires
DPE
A
B
C
D
E
F
G
GES
A
B
C
D
E
F
G

Prêt immobilier

Vous souhaitez connaître votre capacité d’emprunt et trouver le meilleur crédit immobilier ?
Réaliser une simulation gratuite

Appartement à STRASBOURG
Appartement à STRASBOURG
Appartement à STRASBOURG
Appartement à STRASBOURG
Appartement à STRASBOURG
Appartement à STRASBOURG
Appartement à STRASBOURG
Appartement à STRASBOURG
Appartement à STRASBOURG
Appartement à STRASBOURG
Appartement à STRASBOURG
Appartement à STRASBOURG
Appartement à STRASBOURG
Appartement à STRASBOURG
Appartement à STRASBOURG
Appartement à STRASBOURG
Ce site est protégé par reCAPTCHA la Politique de confidentialité et les Conditions d’utilisation de Google s’appliquent.
Obtenir un prêt immobilier au meilleur taux ?

En poursuivant votre navigation sans modifier vos paramètres, vous acceptez l'utilisation de cookies susceptibles de réaliser des statistiques de visite. Cliquez ici pour plus d'informations