Maison de ville

— Ramonville-Saint-Agne 31520 —
370 000 €
98 m²
5 pièces
parkingbalcon/terrasse

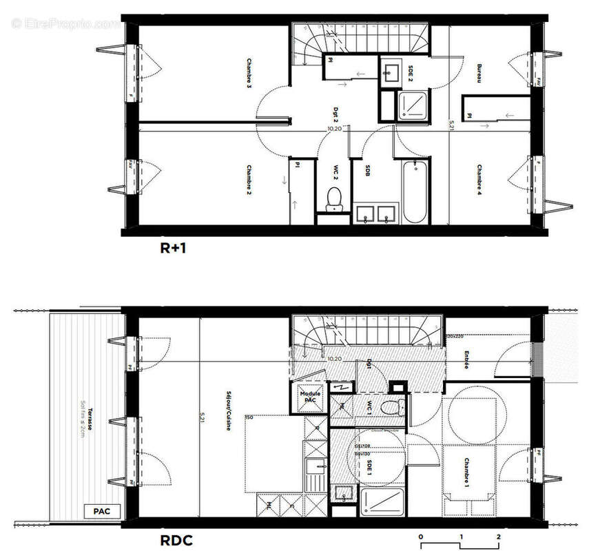
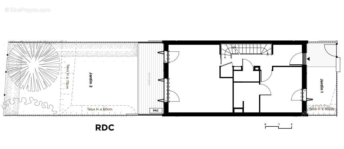
Ramonville Centre, Vivre en coeur de ville dans un écrin boisé et arboré est aujourd'hui possible. Cette maison de ville en duplex vous offre tout le confort d'un logement écologique dans un espace boisé et arboré pour un futur plus durable Au rez-de-chaussée vous retrouvez une entrée avec placard, une suite parentale de 15,30m2 salle d'eau incluse, un wc, un espace cellier et un séjour cuisine de 23,10m2 exposé ouest sur terrasse de 10,60m2 et jardinet de 47m2. Le reste du coin nuit se trouve à l'étage avec 2 chambres de 11,50 et 9,80m2, une salle de bain, un wc indépendant et une dernière chambre avec salle d'eau pour 15,20m2. 2 places de parkings en sous-sol. Prestations de qualité : isolation renforcée, module PAC, volets roulants électriques, domotique, carrelage au sol, parquet stratifié dans les chambres, peinture lisse .... A proximité :1 min à pied de l'arrêt « Parc Saint-Agne » bus : 56, 81, 82, 112, 350, 383, 2 min à pied des commerces de proximité 10 min à pied de la station « Ramonville » métro ligne B, 6 min en voiture du périphérique et de l'A61, 7 min en voiture du Centre Commercial Labège, 10 min en voiture de L'Hôpital Rangueil, 17 min en voiture de l'aéroport de Toulouse-Blagnac Pour tout renseignement : Féänor MAMEO [Coordonnées masquées] NON SOUMIS AU DPE
Voir plus

Référence: INI-M19
Honoraires à la charge du vendeur.

Prêt immobilier

Vous souhaitez connaître votre capacité d’emprunt et trouver le meilleur crédit immobilier ?
Réaliser une simulation gratuite

Maison à RAMONVILLE-SAINT-AGNE
Maison à RAMONVILLE-SAINT-AGNE
Maison à RAMONVILLE-SAINT-AGNE
Maison à RAMONVILLE-SAINT-AGNE
Maison à RAMONVILLE-SAINT-AGNE
Maison à RAMONVILLE-SAINT-AGNE
Maison à RAMONVILLE-SAINT-AGNE
Maison à RAMONVILLE-SAINT-AGNE
Maison à RAMONVILLE-SAINT-AGNE
Maison à RAMONVILLE-SAINT-AGNE
Maison à RAMONVILLE-SAINT-AGNE
Maison à RAMONVILLE-SAINT-AGNE
Maison à RAMONVILLE-SAINT-AGNE
Maison à RAMONVILLE-SAINT-AGNE
Maison à RAMONVILLE-SAINT-AGNE
Maison à RAMONVILLE-SAINT-AGNE
Maison à RAMONVILLE-SAINT-AGNE
Maison à RAMONVILLE-SAINT-AGNE
Ce site est protégé par reCAPTCHA la Politique de confidentialité et les Conditions d’utilisation de Google s’appliquent.
Obtenir un prêt immobilier au meilleur taux ?

En poursuivant votre navigation sans modifier vos paramètres, vous acceptez l'utilisation de cookies susceptibles de réaliser des statistiques de visite. Cliquez ici pour plus d'informations