Bénéficiez des services de nos partenaires locaux soigneusement sélectionnés
pour vous accompagner dans votre parcours d'achat immobilier

Exclusivité a vendre guipavas maison 115 m² habitables 180 m² utiles 2 garages jardin clos

— Guipavas 29490 —
233 750 €
115 m² / 425 m²
6 pièces
parkingjardin

Nos partenaires locaux
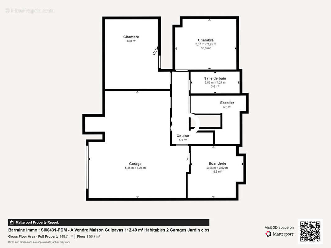
EXCLUSIVITÉ - GUIPAVAS. Réf : SI00431-PDM Située dans le secteur de GUIPAVAS (29490), nous sommes ravis de vous proposer cette maison de 6 pièces développant 115 m² habitables et 180 m² utiles. Edifiée en 1967 sur une parcelle de 425 m², elle se compose, au niveau principal d'une large entrée, pièce à vivre de 20 m², salle à manger de 17 m² pouvant s'ouvrir sur la cuisine de 10,97 m². Toujours sur le même niveau, 1 chambre avec rangements, salle de bains avec fenêtre et WC indépendant. Au rez-de-chaussée, 2 chambres supplémentaires de 11,5 et 14,6 m², salle de bains avec fenêtre et WC. Dégagement avec rangements. Buanderie avec fenêtre. Garage de 33m². Un second garage ayant été construit dans les années 1990 est associé à la maison. Développant 37 m² au sol, il dispose d'une belle hauteur sous plafonds et vous permettra de stocker ou bricoler. De nombreux travaux viennent d'être réalisés : Remplacement de la toiture zinc en 2019, remplacement du système de chauffage par une PAC air/air avec ballon thermodynamique en 2023 et de l'ensemble des menuiseries en PVC double vitrage en 2024. Enfin, les combles ont également été isolé. Désormais et afin de lui donner une seconde jeunesse, l'intérieur de cette maison sera à rénover. La maison est située à deux minutes des écoles. On trouve un arrêt de bus à deux minutes de la maison. Les nationales N12, N265 et N165 et l'aéroport Brest-Bretagne sont accessibles à moins de 4 km. Vous trouverez de nombreux commerces à proximité immédiate. Les informations sur les risques auxquels ce bien est exposé sont disponibles sur le site Géorisques : www.georisques.gouv.fr. Prenez contact avec notre agence immobilière Barraine IMMO Brest - Siam pour une première visite de cette maison à vendre. (6.25 % honoraires TTC à la charge de l'acquéreur.)
Voir plus

Référence: SI00431-PDM
Honoraires d'agence de 6.25% à la charge de l'acquéreur
Barème des honoraires
DPE
A
B
C
D
E
F
G
GES
A
B
C
D
E
F
G

Prêt immobilier

Vous souhaitez connaître votre capacité d’emprunt et trouver le meilleur crédit immobilier ?
Réaliser une simulation gratuite

Maison à GUIPAVAS
Maison à GUIPAVAS
Maison à GUIPAVAS
Maison à GUIPAVAS
Maison à GUIPAVAS
Maison à GUIPAVAS
Maison à GUIPAVAS
Maison à GUIPAVAS
Maison à GUIPAVAS
Maison à GUIPAVAS
Maison à GUIPAVAS
Maison à GUIPAVAS
Maison à GUIPAVAS
Maison à GUIPAVAS
Maison à GUIPAVAS
Maison à GUIPAVAS
Maison à GUIPAVAS
Maison à GUIPAVAS
Maison à GUIPAVAS
Ce site est protégé par reCAPTCHA la Politique de confidentialité et les Conditions d’utilisation de Google s’appliquent.
Obtenir un prêt immobilier au meilleur taux ?

En poursuivant votre navigation sans modifier vos paramètres, vous acceptez l'utilisation de cookies susceptibles de réaliser des statistiques de visite. Cliquez ici pour plus d'informations