Appartement 93m² à clenay

— Clenay 21490 —
309 000 €
94 m²
4 pièces
parkingbalcon/terrasse

CLENAY, à 10 mn de DIJON, PROGRAMME NEUF, VENTE EN ETAT FUTUR D'ACHEVEMENT dans un quartier calme, un appartement en duplex de type 4 exposé Sud et Ouest et comprenant :
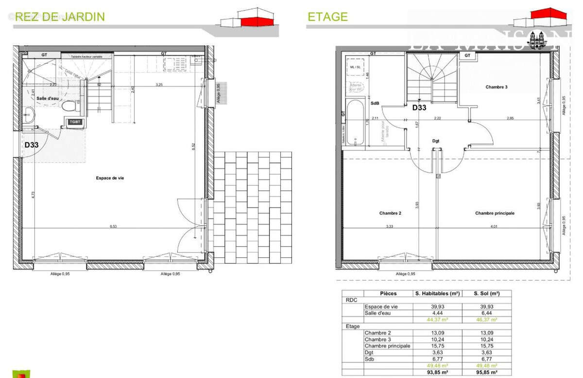
Au rez-de-chaussée : un espace de vie avec coin cuisine, une salle d'eau avec un W.C.
Au premier étage : une salle de bain, un dégagement, une chambre principale et deux chambres.
Cet appartement bénéficie d'une terrasse privative d'une surface de 11m² environ et d'un jardin jouissance privative avec portillon, d'une surface de 76m² environ, exposé Sud et Ouest
Garage individuel et place de parking privatif.
Proches des commerces et accès autoroute.

Honoraires à la charge du vendeur. Dans une copropriété de 35 lots. Aucune procédure n'est en cours. Non soumis au DPE. Les informations sur les risques auxquels ce bien est exposé sont disponibles sur le site Géorisques : georisques.gouv.fr.

Votre conseiller La Maison GLM : Elisabeth Fernandes
Agent commercial (Entreprise individuelle)
RSAC 982294266 RSAC Dijon
RCP Galian .
Plus d'éléments et visuels disponibles sur notre site internet !
Lamaisonglm.fr
Voir plus

Référence: VA2397-LMGLM
Bien en copropriété. Nombre de lots : 35.
Honoraires à la charge du vendeur.
Barème des honoraires

Prêt immobilier

Vous souhaitez connaître votre capacité d’emprunt et trouver le meilleur crédit immobilier ?
Réaliser une simulation gratuite

Appartement à CLENAY
Appartement à CLENAY
Appartement à CLENAY
Appartement à CLENAY
Ce site est protégé par reCAPTCHA la Politique de confidentialité et les Conditions d’utilisation de Google s’appliquent.
Obtenir un prêt immobilier au meilleur taux ?

En poursuivant votre navigation sans modifier vos paramètres, vous acceptez l'utilisation de cookies susceptibles de réaliser des statistiques de visite. Cliquez ici pour plus d'informations