Pas de parking à Belluire pour le moment. Découvrez dès maintenant les parkings dans le département Charente-Maritime.

Appartement toulon 3 pièce(s) 59 m2

— Toulon 83200 —
159 000 €
66 m²
3 pièces
balcon/terrasseascenseur

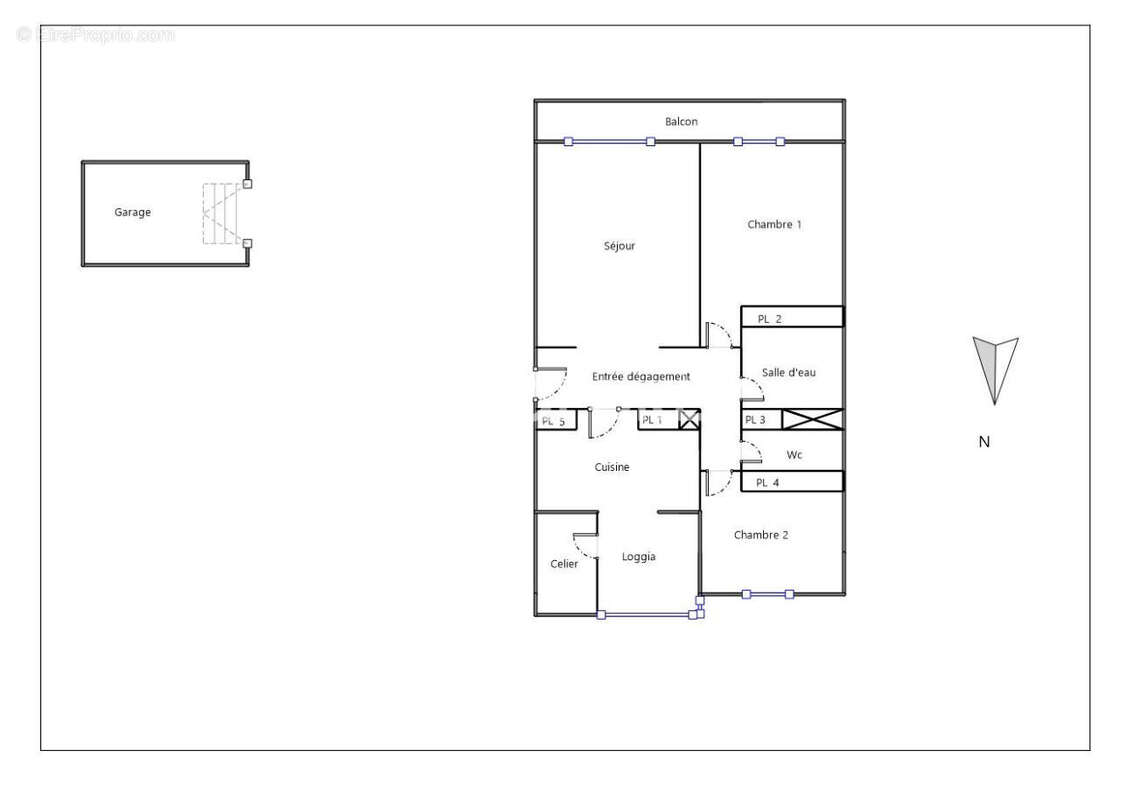
BAISSE DE PRIX ETAGE ELEVE - ASCENSEUR - FAIBLES CHARGES - STATIONNEMENT Situé dans le quartier prisé de la Cordeille à Toulon Ouest, au sein d'une résidence fermée et sécurisée, cet appartement T3 traversant de 66 m² offre un cadre de vie agréable et une situation idéale à proximité des commodités et des axes autoroutiers. Situé au 7eme étage avec ascenseur. Il se compose d'une entrée, d'un séjour climatisé ouvrant sur une terrasse exposée plein sud, d'une cuisine indépendante attenante à une loggia et à un cellier, de deux chambres confortables avec placards, d'une salle d'eau et d'un WC séparé. La terrasse, accessible depuis le séjour, bénéficie d'une belle vue dégagée, offrant un véritable confort au quotidien. L'appartement est situé au septième étage sur huit d'un immeuble bien entretenu avec ascenseur. Le stationnement est libre et aisé au sein de la résidence, qui dispose également d'un environnement calme et sécurisé. La résidence se trouve à proximité des transports en commun, des commerces, des écoles et des axes autoroutiers, ce qui en fait un emplacement particulièrement pratique. Les charges mensuelles : 81 euros / mois. Et un garage attenant à l'immeuble est disponible en option. Cet appartement lumineux, bien agencé et idéalement situé, représente une belle opportunité à ne pas manquer. Les atouts : Etage Elevé avec ascenseur Terrasse plein sud avec vue dégagée Résidence fermée, sécurisée et bien entretenue, Faibles charges Proximité immédiate des commerces, écoles, transports et axes autoroutiers, Stationnement libre dans la résidence, Option garage disponible. Copropriété de 295 lots - dont 169 lots habitation. (Pas de procédure en cours). Charges annuelles : 972 euros.
Voir plus

Référence: 314
Bien en copropriété. Nombre de lots : 295. Charges de copropriété : 972 €.
Honoraires à la charge du vendeur.
Barème des honoraires
DPE
A
B
C
D
E
F
G
GES
A
B
C
D
E
F
G

Prêt immobilier

Vous souhaitez connaître votre capacité d’emprunt et trouver le meilleur crédit immobilier ?
Réaliser une simulation gratuite

Appartement à TOULON
Appartement à TOULON
Appartement à TOULON
Appartement à TOULON
Appartement à TOULON
Appartement à TOULON
Appartement à TOULON
Appartement à TOULON
Appartement à TOULON
Ce site est protégé par reCAPTCHA la Politique de confidentialité et les Conditions d’utilisation de Google s’appliquent.
Obtenir un prêt immobilier au meilleur taux ?

En poursuivant votre navigation sans modifier vos paramètres, vous acceptez l'utilisation de cookies susceptibles de réaliser des statistiques de visite. Cliquez ici pour plus d'informations