Maison 129m² à la poueze

— La Poueze 49370 —
157 500 €
129 m² / 592 m²
4 pièces
jardin

Iad France - Christelle Imbert vous propose : VAL D'ERDRE AUXENCE Villemoisan
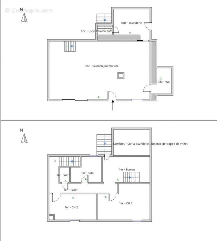
Maison sur 3 niveaux. Grande pièce de vie, 3 chambres dont une suite parentale, 2 salles de bains, 3 wc, buanderie. Dépendances, jardin proche non attenant. Assainissement conforme. Poêle à pellets et électrique. Fibre

Maison de bourg mitoyenne:
RDC : Pièce de vie avec poêle à pellets, Buanderie, WC
1er étage : 2 chambres, palier, SDB, wc
2ème étage : palier, 1 suite parentale avec salle de bains et wc, dressing.
Des dépendances pour stocker et un abri dans le jardin de 400 m² non attenant. Terrasse.
Proches des commodités vous trouverez l'école maternelle et primaire, le bar fait dépôt de pain, relais poste et petite épicerie, facilitant votre quotidien.
Pour tout autre besoin, supermarchés, médecins, ophtalmo. se situent entre 6 et 9 km à la ronde. De plus, un garage se situe dans le bourg pour l'entretien de vos véhicules.

Belle opportunité à saisir dans un village paisible.

Contactez moi pour plus d'informations et / ou organiser une visite



Honoraires d'agence à la charge du vendeur.
Information d'affichage énergétique sur ce bien : classe ENERGIE C indice 163 et classe CLIMAT A indice 5. Les informations sur les risques auxquels ce bien est exposé, y compris l'obligation légale de débroussaillement, sont disponibles sur le site Géorisques : http://www.georisques.gouv.fr.
La présente annonce immobilière a été rédigée sous la responsabilité éditoriale de Mme Christelle Imbert mandataire indépendant en immobilier (sans détention de fonds), agent commercial de la SAS I@D France immatriculé au RSAC de Nantes sous le numéro 399621820, titulaire de la carte de démarchage immobilier pour le compte de la société I@D France SAS.
Informations LOI ALUR :
Honoraires charge vendeur. (gedeon_6727_32061567)
Voir plus

Référence: 1834912
Honoraires à la charge du vendeur.
DPE
A
B
C
D
E
F
G
GES
A
B
C
D
E
F
G

Prêt immobilier

Vous souhaitez connaître votre capacité d’emprunt et trouver le meilleur crédit immobilier ?
Réaliser une simulation gratuite

Photo 1 - Maison à LA POUEZE
Photo 1
Photo 2 - Maison à LA POUEZE
Photo 2
Photo 3 - Maison à LA POUEZE
Photo 3
Photo 4 - Maison à LA POUEZE
Photo 4
Photo 5 - Maison à LA POUEZE
Photo 5
Photo 6 - Maison à LA POUEZE
Photo 6
Photo 7 - Maison à LA POUEZE
Photo 7
Photo 8 - Maison à LA POUEZE
Photo 8
Photo 9 - Maison à LA POUEZE
Photo 9
Ce site est protégé par reCAPTCHA la Politique de confidentialité et les Conditions d’utilisation de Google s’appliquent.
Obtenir un prêt immobilier au meilleur taux ?

En poursuivant votre navigation sans modifier vos paramètres, vous acceptez l'utilisation de cookies susceptibles de réaliser des statistiques de visite. Cliquez ici pour plus d'informations