Bénéficiez des services de nos partenaires locaux soigneusement sélectionnés
pour vous accompagner dans votre parcours d'achat immobilier

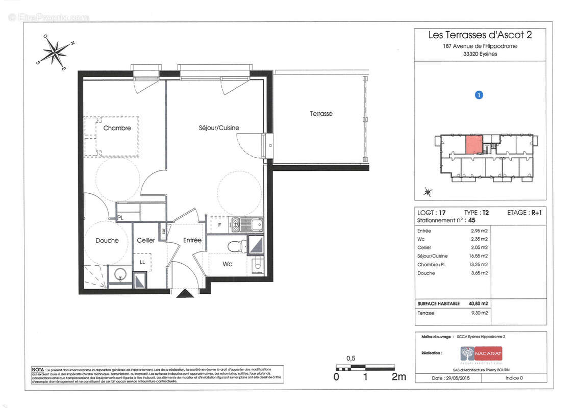
T2 de 41 m2 à eysines avec balcon et place de parking en sous-sol.

— Eysines 33320 —
173 000 €
41 m²
2 pièces
parkingbalcon/terrasse

Nos partenaires locaux
Adresse : 187 Avenue de l’Hippodrome, 33320 Eysines (intrarocade).
La société GTL vous invite à découvrir cet appartement 2 pièces, situé dans une résidence récente (2015) avec ascenseur, à deux pas des commodités et des grands axes.
Les atouts du bien : une entrée avec un cellier et WC séparés, un séjour lumineux avec cuisine ouverte, une chambre avec placard intégré, une salle d’eau, une belle terrrasse de plus de 9 m2 et une place de stationnement privative en sous-sol.
Le logement est en bon état général, lumineux et fonctionnel.
Plan disponible à la fin des photos.
Informations complémentaires : Charges de copropriété : environ 68 €/mois. Pas de procédure en cours. Taxe foncière 2025 : 928€.
Pour toute question ou organiser une visite, contactez Camille Bonnal au [Coordonnées masquées].
Voir plus

Bien en copropriété. Nombre de lots : 51. Charges de copropriété : 813 €.
Honoraires à la charge du vendeur.
Barème des honoraires
DPE
A
B
C
D
E
F
G
GES
A
B
C
D
E
F
G

Prêt immobilier

Vous souhaitez connaître votre capacité d’emprunt et trouver le meilleur crédit immobilier ?
Réaliser une simulation gratuite

Appartement à EYSINES
Appartement à EYSINES
Appartement à EYSINES
Appartement à EYSINES
Appartement à EYSINES
Appartement à EYSINES
Appartement à EYSINES
Appartement à EYSINES
Ce site est protégé par reCAPTCHA la Politique de confidentialité et les Conditions d’utilisation de Google s’appliquent.
Obtenir un prêt immobilier au meilleur taux ?

En poursuivant votre navigation sans modifier vos paramètres, vous acceptez l'utilisation de cookies susceptibles de réaliser des statistiques de visite. Cliquez ici pour plus d'informations