Bénéficiez des services de nos partenaires locaux soigneusement sélectionnés
pour vous accompagner dans votre parcours d'achat immobilier

Appartement neuf t2/pouvourville

— Toulouse 31400 —
219 000 €
41 m²
2 pièces
parking

Nos partenaires locaux
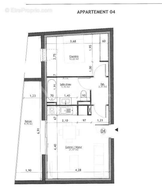
Située dans un quartier résidentiel calme et recherché à Pouvourville. Cet appartement T2 contemporain neuve offre un cadre de vie privilégié à seulement quelques minutes des commodités, des écoles, et des grands axes. D'une surface habitable de plus de 40m2, il se compose d'une pièce de vie avec sa cuisine ouverte donnant sur un balcon, d'une chambre avec placard et son balcon, d'une salle d'eau avec WC, une cave et une place de parking sécurisée. Prestations de qualité : Climatisation réversible, menuiseries en aluminium, carrelage grand format, volets roulants motorisés, normes RE2020. Livraison prévue : 2026 Frais de notaire réduits - Garantie décennale - personnalisation possible selon l'avancée du projet Contactez-nous dès maintenant pour en savoir plus, ou organiser une rencontre avec le constructeur.
Voir plus

Référence: 2617
Honoraires à la charge du vendeur.
Barème des honoraires

Prêt immobilier

Vous souhaitez connaître votre capacité d’emprunt et trouver le meilleur crédit immobilier ?
Réaliser une simulation gratuite

Appartement à TOULOUSE
Appartement à TOULOUSE
Appartement à TOULOUSE
Ce site est protégé par reCAPTCHA la Politique de confidentialité et les Conditions d’utilisation de Google s’appliquent.
Obtenir un prêt immobilier au meilleur taux ?

En poursuivant votre navigation sans modifier vos paramètres, vous acceptez l'utilisation de cookies susceptibles de réaliser des statistiques de visite. Cliquez ici pour plus d'informations