Bénéficiez des services de nos partenaires locaux soigneusement sélectionnés
pour vous accompagner dans votre parcours d'achat immobilier

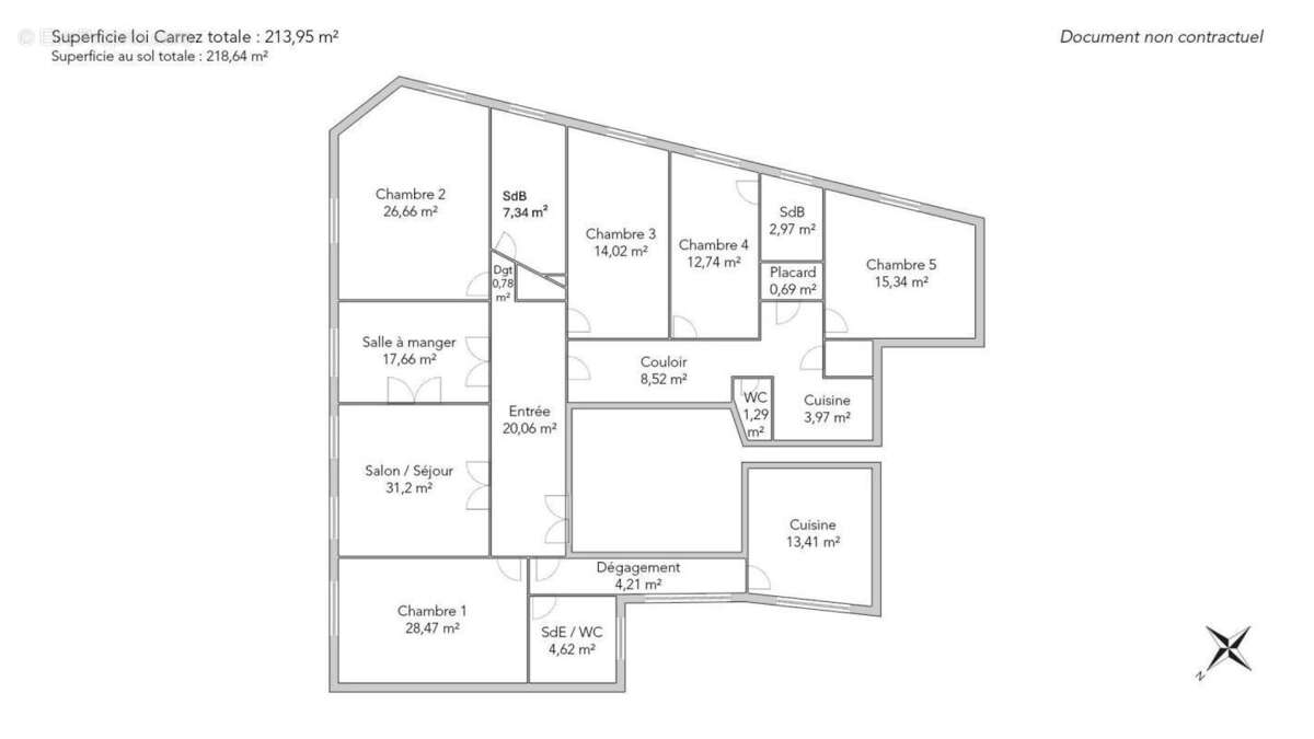
Paris 17 - 7 pièces (214 m²) avec balcon + studio (17,4 m²)

— Paris-17e 75017 —
1 975 000 €
231 m²
9 pièces
ascenseur

Nos partenaires locaux
APPARTEMENT 7 PIÈCES (214 m²) AVEC BALCON + T1 (17,4 m²) en étage

Proche du métro Pereire (ligne 3), venez visiter ce très bel appartement de pur style Haussmannien de 7 pièces de 214 m² en vente dans le 17e arrondissement de Paris (75017)
Il se compose de cinq chambres dont une parentale avec une salle d'eau avec WC attenante et une avec salle de bains attenante, d'un salon, d'une salle à manger, d'une cuisine équipée, d'une salle de bain ainsi que d'un cabinet de toilette indépendant.
Il est complété d'un petit appartement de 17,4 m² constitué grâce au regroupement de deux chambres de bonnes au 7ème étage, ainsi que d'une grande cave d'une vingtaine de m².

Idéalement situé à l'étage noble (2e) d'un immeuble Haussmannien de 2ème classe (avec escalier de service menant aux chambres de bonnes), avec ascenseur, sa hauteur sous plafond, ses nombreuses moulures et cheminées ouvragées d'époque et son balcon filant au niveau des pièces de vie lui permettent de perpétrer l'héritage Haussmannien.

A noter que l'immeuble ne contient que 9 logements sur 7 étages, 6 (du 1er au 6ème) étant liés chacun à 2 chambres de bonne, le 7ème à l'ancienne loge du rez-de-chaussée, et les 8 et 9èmes sont d'anciennes chambres de service.

Des établissements scolaires du primaire et du secondaire sont implantés à moins de 10 minutes à pied, 11 crèches, tout comme l'Institut supérieur du commerce de Paris pour le supérieur. Côté transports en commun, on trouve à proximité la station de RER Pereire-Levallois (ligne C), 15 lignes de bus, la gare Péreire-Levallois, les métros 3 et 2 ainsi que la station de tramway Porte d'Asnières-Marguerite Long (ligne T3b).

Bien soumis au statut de la copropriété : 1 lot sur 13 lots (dont 9 lots d'habitation).
Quote-part annuelle du budget prévisionnel : 5440 € / annuel
Pas de procédure en cours.

N'hésitez pas à me contacter pour découvrir les nombreux avantages de cet appartement : Nicolas GALLOIS - EI - RSAC 753362482 au [Coordonnées masquées].
Voir plus

Référence: 3894_NG
Bien en copropriété. Nombre de lots : 13. Charges de copropriété : 453 €.
DPE
A
B
C
D
E
F
G
GES
A
B
C
D
E
F
G

Prêt immobilier

Vous souhaitez connaître votre capacité d’emprunt et trouver le meilleur crédit immobilier ?
Réaliser une simulation gratuite

Appartement à PARIS-17E
Appartement à PARIS-17E
Appartement à PARIS-17E
Appartement à PARIS-17E
Appartement à PARIS-17E
Appartement à PARIS-17E
Appartement à PARIS-17E
Appartement à PARIS-17E
Appartement à PARIS-17E
Appartement à PARIS-17E
Appartement à PARIS-17E
Appartement à PARIS-17E
Ce site est protégé par reCAPTCHA la Politique de confidentialité et les Conditions d’utilisation de Google s’appliquent.
Obtenir un prêt immobilier au meilleur taux ?

En poursuivant votre navigation sans modifier vos paramètres, vous acceptez l'utilisation de cookies susceptibles de réaliser des statistiques de visite. Cliquez ici pour plus d'informations