Bénéficiez des services de nos partenaires locaux soigneusement sélectionnés
pour vous accompagner dans votre parcours d'achat immobilier

Maison et appartement à vendre, proche du centre de GREZIEU-LA-VARENNE

— Grezieu-La-Varenne 69290 —
455 000 €
160 m² / 1 068 m²
7 pièces
parkingbalcon/terrassejardin

Nos partenaires locaux
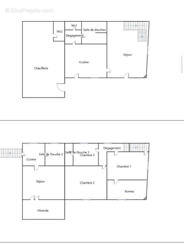
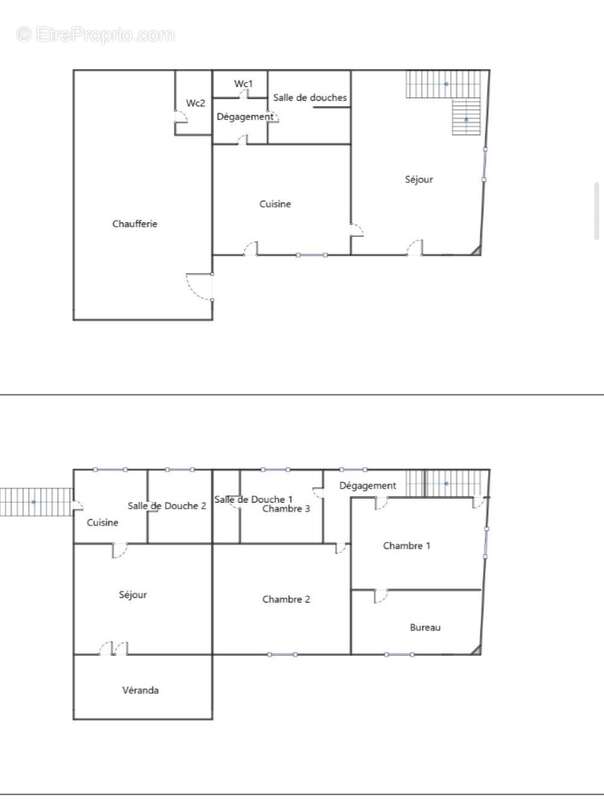
Je vous présente dans cet ancien corps de ferme, une maison et un appartement, sur une parcelle de plus de 1000m2. Situés à deux pas du centre du village de Grézieu-la-Varenne, au calme absolu et sans vis-à-vis.

Ce bien rare, à rénover offre un énorme potentiel pour les amoureux de l'authenticité ou les investisseurs à la recherche d'un bien de caractère à réhabiliter.
Agencée sur 3 niveaux, vous disposez au rez-de-chaussée d'une grande cuisine ainsi qu'un séjour donnant sur une terrasse couverte par une véranda. Un espace supplémentaire d'environ 50m2 peut être aménagé pour l'appartement ou la maison.
Au 1er étage : 3 chambres et une salle d'eau/wc.
Au 2ème étage : une chambre supplémentaire et combles aménagés

Concernant l'appartement d'environ 35m2, celui-ci possède une entrée indépendante avec une cuisine, une salle d'eau/wc, un séjour et un balcon avec véranda.

Côté jardin : un grand garage 3 places, fermé.

Vous avez des questions ? N'hésitez pas à me contacter. Les honoraires sont à la charge du vendeur.
Les informations sur les risques auxquels ce bien est exposé sont disponibles sur le site Géorisques : www. georisques. gouv. fr.

Réseau Immobilier CAPIFRANCE - Votre agent commercial (RSAC N°897 979 035 - Greffe de LYON) Anne-Sophie BERNIER Entrepreneur Individuel [Coordonnées masquées] - Réf.927653
Voir plus

Référence: 340931883861
Honoraires à la charge du vendeur.
DPE
A
B
C
D
E
F
G
GES
A
B
C
D
E
F
G
Maison à GREZIEU-LA-VARENNE
Maison à GREZIEU-LA-VARENNE
Maison à GREZIEU-LA-VARENNE
Maison à GREZIEU-LA-VARENNE
Maison à GREZIEU-LA-VARENNE
Maison à GREZIEU-LA-VARENNE
Maison à GREZIEU-LA-VARENNE
Maison à GREZIEU-LA-VARENNE
Maison à GREZIEU-LA-VARENNE
Maison à GREZIEU-LA-VARENNE
Maison à GREZIEU-LA-VARENNE
Maison à GREZIEU-LA-VARENNE
Maison à GREZIEU-LA-VARENNE
Maison à GREZIEU-LA-VARENNE
Maison à GREZIEU-LA-VARENNE
Maison à GREZIEU-LA-VARENNE
Maison à GREZIEU-LA-VARENNE
Maison à GREZIEU-LA-VARENNE
Maison à GREZIEU-LA-VARENNE
Maison à GREZIEU-LA-VARENNE
Maison à GREZIEU-LA-VARENNE
Maison à GREZIEU-LA-VARENNE
Maison à GREZIEU-LA-VARENNE
Maison à GREZIEU-LA-VARENNE
Maison à GREZIEU-LA-VARENNE
Maison à GREZIEU-LA-VARENNE
Maison à GREZIEU-LA-VARENNE
Géorisques

Les informations sur les risques auxquels ce bien est exposé sont disponibles sur le site Géorisques : www.georisques.gouv.fr

Ce site est protégé par hCaptcha Politique de confidentialité et Conditions d’utilisation s’appliquent.

En poursuivant votre navigation sans modifier vos paramètres, vous acceptez l'utilisation de cookies susceptibles de réaliser des statistiques de visite. Cliquez ici pour plus d'informations