Bénéficiez des services de nos partenaires locaux soigneusement sélectionnés
pour vous accompagner dans votre parcours d'achat immobilier

A vendre angers hauts de st aubin-barra-chu, maison contemporaine, t5

— Angers 49100 —
380 000 €
130 m² / 307 m²
5 pièces
parkingbalcon/terrassejardin

Nos partenaires locaux
Exclusivité de l'ETOILE IMMOBILIERE.
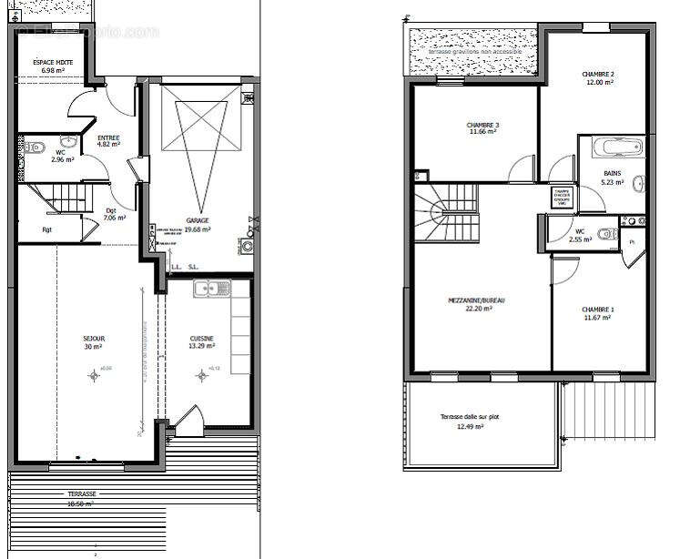
Maison contemporaine de 2010 pouvant accueillir famille et amis, et située à la jonction du CHU d'Angers, de Ste Thérèse et des Hauts de St Aubin
Très fonctionnelle, elle propose dès l'entrée de nombreux rangements, un bureau et un espace de vie spacieux, lumineux et ouvert sur sa vaste cuisine.
Le garage de 20m2 facilitera votre stationnement dans ce secteur fortement demandé.
A l'étage, les 3 grandes chambres sont complétées d'une mezzanine aux dimensions permettant un aménagement combiné bureau-chambre.
Le petit truc en plus : une terrasse attenante à la mezzanine de l'étage pouvant satisfaire les envies de détente et de soleil tout en télétravaillant depuis l'espace bureau par exemple !
Jardin et terrasse du rez-de-chaussée complètent cette offre exclusive.
Les bus et tramway sont aisément accessibles, ainsi que les différents commerces de proximité.
Classement énergétique C.
Estimation des coûts annuels d'énergie entre 1368€ et 1850€ (index 2023).
Une visite ? Thomas PORRET [Coordonnées masquées]
agent commercial EI/RCS 808006472
Conseiller immobilier depuis 20 ans : Votre projet est sous une bonne Étoile.
Les informations sur les risques auxquels ce bien est exposé sont disponibles sur le site Géorisques.
 
ACHAT - VENTE - GESTION - LOCATION - ESTIMATION - CONSEIL
Types de biens : Maisons, Appartements, Immeubles, Monopropriété et Copropriété, Ferme, Parking, Garage, Terrains...
Secteurs :
Angers : Centre, Lafayette, Eblé, Madeleine, Saint Léonard, Roseraie, Deux croix, Banchais, Montplaisir, Eventard, Saint Serge, Ney, Chalouère, Hauts de Saint Aubin, Doutre, Camus, Belle Beille, Saint Jacques, Nazareth, Lac de Maine.
Première Couronne : Beaucouzé, Bouchemaine, Saint Léger de Linières, Avrillé, Montreuil Juigné, Ecouflant, Saint sylvain d'Anjou, SaInt Barthélémy d'Anjou, Trélazé, Les Ponts de Cé,
Mais aussi : Briollay, Feneu, Soulaire-et-Bourg, Sceaux d'Anjou, Grez-Neuville, Le lion d'Angers, Champigé, Etriché, Tiercé, Seiches sur le Loir, Huillé, Lézigné, Baracé, Durtal, Les rairies, Montigné-les-Rairies, Jarzé, Bauné, Corné, Mazé-Milon, Beaufort-en-Anjou, Le Plessis-Grammoire, Loire Authion, Mûrs erigné, Sainte-Melaine-sur-Aubance, Brissac-Loire-Aubance, Les Garennes sur Loire, Saint-Martin-du-Fouilloux, Saint-Clément-de-la-Place, Saint-Lambert-la-Potherie. - Votre projet immobilier est sous une bonne ETOILE -
Voir plus

Référence: 147
Honoraires d'agence de 5.56% à la charge de l'acquéreur
Barème des honoraires
DPE
A
B
C
D
E
F
G
GES
A
B
C
D
E
F
G

Prêt immobilier

Vous souhaitez connaître votre capacité d’emprunt et trouver le meilleur crédit immobilier ?
Réaliser une simulation gratuite

Maison à ANGERS
Maison à ANGERS
Maison à ANGERS
Maison à ANGERS
Maison à ANGERS
Maison à ANGERS
Maison à ANGERS
Maison à ANGERS
Maison à ANGERS
Ce site est protégé par reCAPTCHA la Politique de confidentialité et les Conditions d’utilisation de Google s’appliquent.
Obtenir un prêt immobilier au meilleur taux ?

En poursuivant votre navigation sans modifier vos paramètres, vous acceptez l'utilisation de cookies susceptibles de réaliser des statistiques de visite. Cliquez ici pour plus d'informations