Bénéficiez des services de nos partenaires locaux soigneusement sélectionnés
pour vous accompagner dans votre parcours d'achat immobilier

Jolie maison familiale avec sous-sol complet et terrain plat 942 m²

— La Tour 74250 —
480 000 €
102 m² / 942 m²
5 pièces
parkingbalcon/terrassejardin

Nos partenaires locaux
NOUVEAUTÉ – EXCLUSIVITÉ – LA TOUR – MAISON COUP DE CŒUR – CLASSE ÉNERGIE C – LUMINOSITÉ – DÉCORATION SOIGNÉE – SOUS-SOL COMPLET EN PARTIE AMÉNAGÉ – TERRAIN PLAT ET ARBORÉ

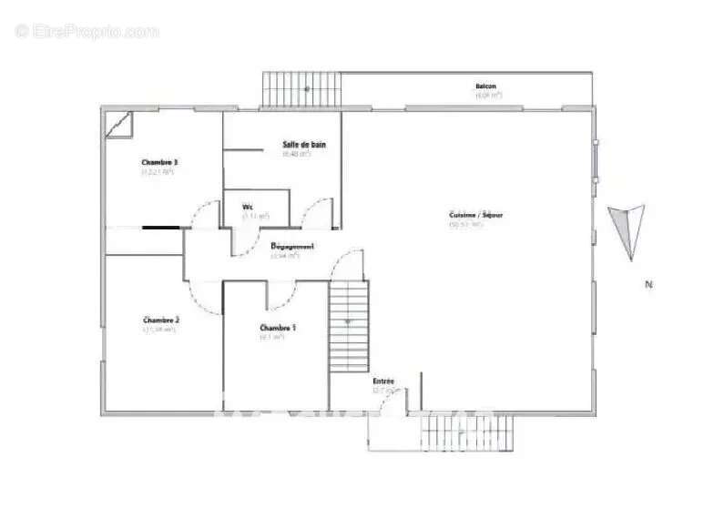
Située dans un environnement résidentiel, cette agréable maison de 1987, très bien entretenue et décorée avec goût, offre environ 206 m² utiles, répartis en un niveau de vie de 102 m² environ et un sous-sol complet partiellement aménagé de 105 m², le tout implanté sur une belle parcelle plate et arborée de 942 m²

Construite avec soin et parfaitement entretenue, cette maison de première main propose sur le même niveau d'habitation une entrée avec coin vestiaire, une belle cuisine équipée ouverte sur une vaste pièce de vie de plus de 50 m², baignée de lumière grâce à son exposition sud-ouest, et desservant un balcon filant plein sud, offrant une vue agréable sur le jardin et les montagnes environnantes. Un dégagement distribue ensuite trois chambres confortables, dont deux dotées d’espaces de rangement, une salle de bains spacieuse avec baignoire et douche, ainsi qu’un WC indépendant.

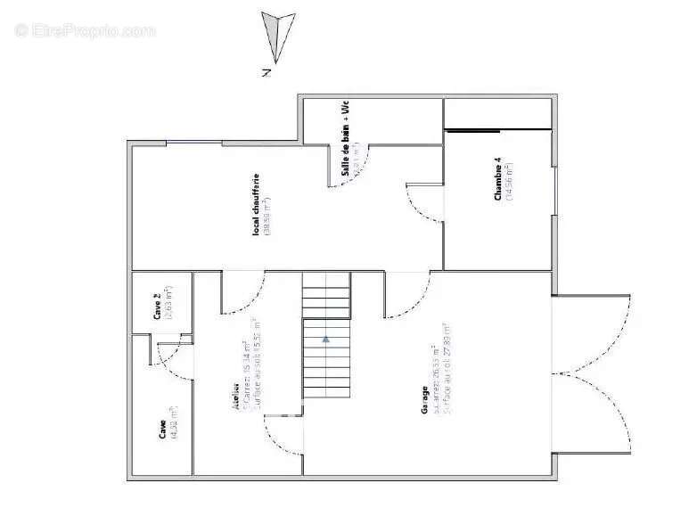
Le sous-sol complet partiellement aménagé se compose d’une grande pièce polyvalente de plus de 38 m² aménagée en cuisine d'été/buanderie, d’une salle d’eau avec WC , d'une chambre d’appoint de 14.70 m² actuellement utilisée en pièce de soin, d’un vaste garage de près 30 m², d’un atelier et d’une cave.

À l’extérieur, le terrain, plat, arboré et très bien entretenu, bénéficie d’une allée et d’une cour goudronnée, de trois stationnements extérieurs ainsi que d’un abri complémentaire.

Cette jolie maison, aménagée avec goût et choyée par sa propriétaire actuelle, présente de belles prestations générales : chauffage économique via PAC air/eau de 2020 avec poêle à bois en complément, réisolation des combles récentes, belle luminosité, pièce de vie, toilettes et salle de bains intégralement rénovées en 2015, joli parquet chêne massif, vaste sous-sol et nombreux rangements offrant de multiples possibilités, terrain piscinable et agrandissement possible...

Vous recherchez une maison fonctionnelle, chaleureuse et bien entretenue, avec sous-sol complet, dans un cadre verdoyant avec vue, à proximité de toutes les commodités et à seulement quelques minutes des axes principaux ? Ce bien est peut-être fait pour vous !

Pour plus d’informations ou pour organiser une visite, contactez – Murielle Marguerettaz - [Coordonnées masquées]

Niveau de consommation énergétique : C - 140 énergie primaire / C - 102 énergie finale
Niveau émission des gaz à effet de serre : A - 4
Coût annuel estimé d’énergie du logement pour un usage standard : de 1050 € à 1490 € par an

Les informations sur les risques auxquels ce bien est exposé sont disponibles sur le site Géorisques : [www.georisques.gouv.fr](http://www.georisques.gouv.fr)

Murielle MARGUERETTAZ (EI), agent commercial indépendant immatriculé au RSAC de ANNECY sous le numéro 839 201 092, de l’agence immobilière Marguerettaz, carte professionnelle CPI 74[Coordonnées masquées]14 122.
Voir plus

Référence: MM8482TAT
Barème des honoraires
DPE
A
B
C
D
E
F
G
GES
A
B
C
D
E
F
G

Prêt immobilier

Vous souhaitez connaître votre capacité d’emprunt et trouver le meilleur crédit immobilier ?
Réaliser une simulation gratuite

Maison à LA TOUR
Maison à LA TOUR
Maison à LA TOUR
Maison à LA TOUR
Maison à LA TOUR
Maison à LA TOUR
Maison à LA TOUR
Maison à LA TOUR
Maison à LA TOUR
Maison à LA TOUR
Maison à LA TOUR
Maison à LA TOUR
Maison à LA TOUR
Maison à LA TOUR
Maison à LA TOUR
Maison à LA TOUR
Maison à LA TOUR
Maison à LA TOUR
Maison à LA TOUR
Maison à LA TOUR
Ce site est protégé par reCAPTCHA la Politique de confidentialité et les Conditions d’utilisation de Google s’appliquent.
Obtenir un prêt immobilier au meilleur taux ?

En poursuivant votre navigation sans modifier vos paramètres, vous acceptez l'utilisation de cookies susceptibles de réaliser des statistiques de visite. Cliquez ici pour plus d'informations