Bénéficiez des services de nos partenaires locaux soigneusement sélectionnés
pour vous accompagner dans votre parcours d'achat immobilier

Maison ossature bois t6 en fond d'impasse

— Peillonnex 74250 —
660 000 €
237 m² / 961 m²
7 pièces
parkingjardin

Nos partenaires locaux
EXCLUSIVITÉ - PEILLONNEX

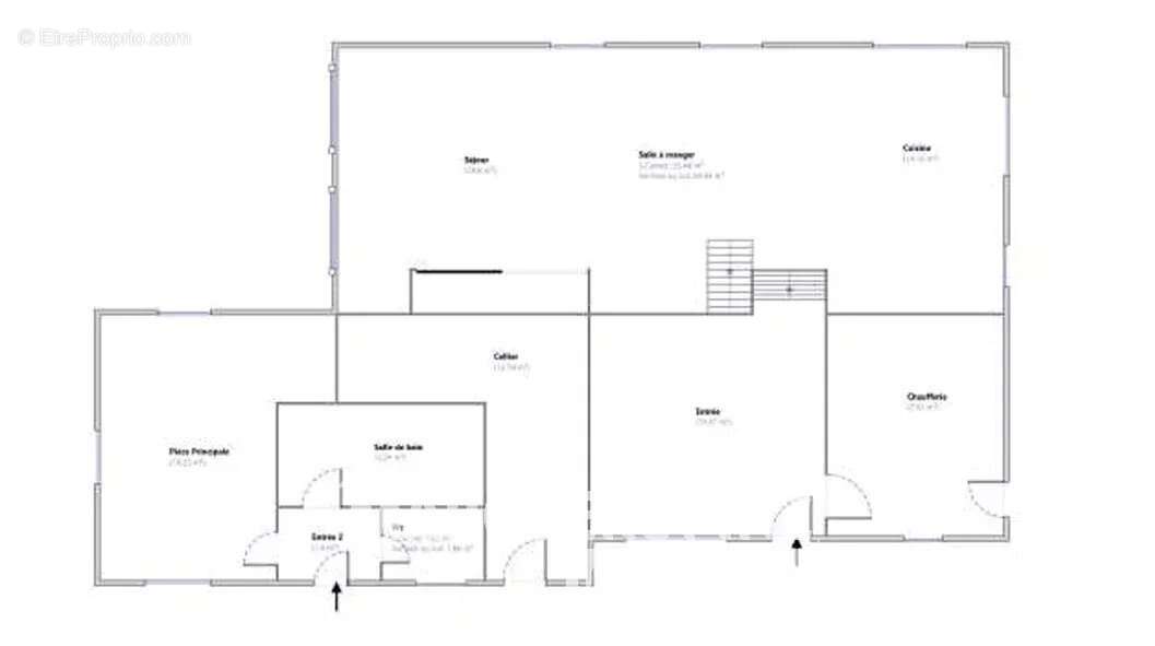
Dans un secteur paisible au bout d'une impasse, découvrez cette magnifique maison ossature bois de 237 m² habitables (257 m² utiles) sur un terrain de 961 m².

Construit en 2004, cette maison en demi-niveaux a été rénovée et agrandie en 2017. Situé en bordure d'une zone agricole, il offre un cadre de vie idyllique.

L'entrée se fait par un grand hall avec placards, menant à un local technique (chaufferie) et une cave/cellier.

La pièce de vie spacieuse de plus de 70 m², comprenant une cuisine équipée ouverte, est inondée de lumière grâce aux nombreuses baies vitrées donnant sur une terrasse orientée sud-ouest, sans vis-à-vis.

Aux étages, vous trouverez 5 chambres dont une trés spacieuse de 26m², un grand dressing, un vaste placard, une salle d'eau et une salle de bain (baignoire et douche).

Au rez-de-chaussée, un studio indépendant avec une pièce principale, un point d'eau et un WC peut être loué ou utilisé pour une activité professionnelle libérale (cuisine à poser).

Le chauffage au sol du rez-de-chaussée est assuré par une pompe à chaleur géothermique, complété par un poêle à bois pour plus de confort pendant les saisons intermédiaires ou les soirées d'hiver cocooning.

Le bardage du chalet a été refait dans un revêtement qui ne nécessite pas d'entretien.

En annexe : un double abri voiture et un grand abri de jardin.

Excellent DPE en C.

Ce chalet en parfait état n'attend plus que vous et votre famille pour vous offrir un havre de paix !

Visite virtuelle disponible.

Montant estimé des dépenses annuelles d'énergie pour un usage standard : entre 1640€ et 2260€ par an. Prix moyens des énergies indexés au 1er janvier 2021 (abonnement compris)

Les informations sur les risques auxquels ce bien est exposé sont disponibles sur le site Géorisques : www.georisques.gouv.fr

Murielle MARGUERETTAZ (EI), agent commercial indépendant immatriculé au RSAC de ANNECY sous le numéro 839 201 092, de l’agence immobilière Marguerettaz, carte professionnelle CPI 74[Coordonnées masquées]14 122
Voir plus

Référence: MQ8179ROC
Barème des honoraires
DPE
A
B
C
D
E
F
G
GES
A
B
C
D
E
F
G

Prêt immobilier

Vous souhaitez connaître votre capacité d’emprunt et trouver le meilleur crédit immobilier ?
Réaliser une simulation gratuite

Maison à PEILLONNEX
Maison à PEILLONNEX
Maison à PEILLONNEX
Maison à PEILLONNEX
Maison à PEILLONNEX
Maison à PEILLONNEX
Maison à PEILLONNEX
Maison à PEILLONNEX
Maison à PEILLONNEX
Maison à PEILLONNEX
Maison à PEILLONNEX
Maison à PEILLONNEX
Maison à PEILLONNEX
Maison à PEILLONNEX
Maison à PEILLONNEX
Maison à PEILLONNEX
Maison à PEILLONNEX
Maison à PEILLONNEX
Maison à PEILLONNEX
Maison à PEILLONNEX
Maison à PEILLONNEX
Maison à PEILLONNEX
Ce site est protégé par reCAPTCHA la Politique de confidentialité et les Conditions d’utilisation de Google s’appliquent.
Obtenir un prêt immobilier au meilleur taux ?

En poursuivant votre navigation sans modifier vos paramètres, vous acceptez l'utilisation de cookies susceptibles de réaliser des statistiques de visite. Cliquez ici pour plus d'informations