Bénéficiez des services de nos partenaires locaux soigneusement sélectionnés
pour vous accompagner dans votre parcours d'achat immobilier

Nantes t3 - bel ancien rue léon blum

— Nantes 44000 —
275 600 €
85 m²
3 pièces

Nos partenaires locaux
Au coeur de Nantes, situé dans une rue piétonne à proximité de toutes commodités (commerces, transports et écoles).

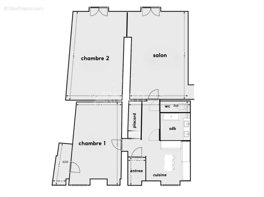
Venez découvrir cet appartement de type 3, situé au deuxième étage d'une copropriété.

Il se compose d'une entrée, une belle pièce de vie, une cuisine, deux chambres dont une avec salle d'eau attenante, et de nombreux rangements.

Les réseaux d'eau et d'électricité, les huisseries ont été rénovées.

Annexe : un grenier

Prix net vendeur : 260 000 € auquel s'ajoute un commission de 15 600 € TTC à la charge de l'acquéreur.

Prix FAI : 275 600 €

Les informations sur les risques auxquels ce bien est exposé sont disponibles sur le site www.georisques.gouv.fr

La présente annonce immobilière vise un lot principal d'habitation ne faisant l'objet d'aucune procédure en cours.

Contactez Thomas Masmont, conseiller immobilier indépendant, cabinet ARNOLD IMMOBILIER par téléphone au [Coordonnées masquées] ou [Coordonnées masquées], ou par e-mail : [Coordonnées masquées]

Agent Commercial mandataire en immobilier immatriculé au Registre Spécial des Agents Commerciaux (RSAC) du Tribunal de Commerce de NANTES 887547594.
Voir plus

Référence: 86286952
DPE
A
B
C
D
E
F
G
GES
A
B
C
D
E
F
G

Prêt immobilier

Vous souhaitez connaître votre capacité d’emprunt et trouver le meilleur crédit immobilier ?
Réaliser une simulation gratuite

Appartement à NANTES
Appartement à NANTES
Ce site est protégé par reCAPTCHA la Politique de confidentialité et les Conditions d’utilisation de Google s’appliquent.
Obtenir un prêt immobilier au meilleur taux ?

En poursuivant votre navigation sans modifier vos paramètres, vous acceptez l'utilisation de cookies susceptibles de réaliser des statistiques de visite. Cliquez ici pour plus d'informations