Bénéficiez des services de nos partenaires locaux soigneusement sélectionnés
pour vous accompagner dans votre parcours d'achat immobilier

Appartement familiale ou profession libérale à faidherbe

— Paris-12e 75012 —
800 000 €
86 m²
4 pièces
ascenseur

Nos partenaires locaux
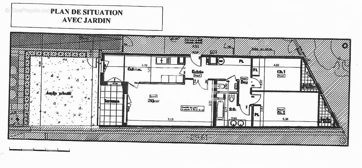
Au coeur du quartier Faidherbe - Chaligny, Découvrez cet appartement traversant en rez-de-jardin d'un immeuble récent de standing année 2003 sécurisé avec gardien. Des travaux ont été effectués pour exercer une profession libérale. Ce qui présente actuellement un appartement composé d'une entrée, une salle d'attente, trois bureaux, une cuisine indépendante, un wc séparé. Une configuration pour de l'habitation peut tout à fait être envisagée laissant imaginer une configuration d'origine avec une entrée, une spacieuse pièce de vie avec cuisine ouverte donnant sur un jardin au calme plein SUD de 40m², une salle d'eau, un wc séparé, deux grandes chambres. Une cave complète ce bien et un emplacement de parking est à vendre en sus au prix de 20.000 euros. Copropriété de 38 lots (Pas de procédure en cours). Charges annuelles : 2400 euros.
Voir plus

Bien en copropriété. Nombre de lots : 38. Charges de copropriété : 2400 €.
Honoraires à la charge du vendeur.
DPE
A
B
C
D
E
F
G
GES
A
B
C
D
E
F
G

Prêt immobilier

Vous souhaitez connaître votre capacité d’emprunt et trouver le meilleur crédit immobilier ?
Réaliser une simulation gratuite

Appartement à PARIS-12E
Appartement à PARIS-12E
Appartement à PARIS-12E
Appartement à PARIS-12E
Appartement à PARIS-12E
Appartement à PARIS-12E
Appartement à PARIS-12E
Ce site est protégé par reCAPTCHA la Politique de confidentialité et les Conditions d’utilisation de Google s’appliquent.
Obtenir un prêt immobilier au meilleur taux ?

En poursuivant votre navigation sans modifier vos paramètres, vous acceptez l'utilisation de cookies susceptibles de réaliser des statistiques de visite. Cliquez ici pour plus d'informations