Bénéficiez des services de nos partenaires locaux soigneusement sélectionnés
pour vous accompagner dans votre parcours d'achat immobilier

Commerce 573m² à riom

— Riom 63200 —
742 000 €
573 m²

Nos partenaires locaux
Vous recherchez un site pour installer votre activité dans la région de Riom, celui-ci est fait pour vous :

Situé en Zac de Layat, à la sortie nord de Riom, il est très facile d'accès (double accès VL et PL) à 5 minutes du péage de Riom sur l'A 71.

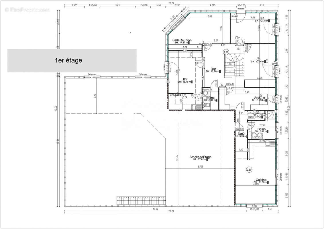
Le bâtiment, de 2012, est découpé en 2 zones qui communiquent :
- une zone de bureaux de 170 m² répartis sur 2 niveaux avec sanitaires au rdc et à l'étage
- une partie dédiée à l'activité et au stockage : 225 m² d'entrepôt avec une hauteur sous plafond allant jusqu'à 9ml, deux mezzanines de 100 et 45 m², un espace sanitaires, douche et cuisine dédié au personnel de 35 m².

L'ensemble est en excellent état, très bien équipé :
- chauffage/climatisation des bureaux par pompe à chaleur
- alarme périmétrique et vidéo surveillance
- câblage RJ 45 avec baie de brassage
- 3 portes sectionnelles pour la partie activité ( une de 4 x 5 ml de haut et deux de 3 x 3 de haut)

Vous avez besoin de plus de renseignement ou souhaitez visiter, n'hésitez pas à me contacter :
Jacques Lamoureux, consultant en immobilier d'entreprise chez Avinim Réseau Brokers
Gsm : [Coordonnées masquées]
[Coordonnées masquées]

AVINIM RESEAU BROKERS est le premier cabinet immobilier d'entreprise structuré en réseau de mandataires. Nous maillons avec notre équipe de 80 Brokers une grande partie du territoire national pour accompagner nos entreprises clientes dans leurs recherches de commerces, bureaux, locaux d'activités, immeubles et fonciers.
www.reseau-brokers.com

Honoraires à la charge du vendeur. Classe énergie C, Classe climat A. Les informations sur les risques auxquels ce bien est exposé sont disponibles sur le site Géorisques : georisques.gouv.fr.

Votre conseiller AVINIM RESEAU BROKERS : Jacques LAMOUREUX
Agent commercial (Entreprise individuelle)
RSAC 829.359.679
RCP 302068489
Voir plus

Référence: VP47073-BROKERS
Honoraires à la charge du vendeur.
Barème des honoraires
DPE
A
B
C
D
E
F
G
GES
A
B
C
D
E
F
G

Prêt immobilier

Vous souhaitez connaître votre capacité d’emprunt et trouver le meilleur crédit immobilier ?
Réaliser une simulation gratuite

Commerce à RIOM
Plan rdc - Commerce à RIOM
Plan rdc
Plan 1er étage - Commerce à RIOM
Plan 1er étage
Commerce à RIOM
Commerce à RIOM
Commerce à RIOM
Commerce à RIOM
Commerce à RIOM
Commerce à RIOM
Ce site est protégé par reCAPTCHA la Politique de confidentialité et les Conditions d’utilisation de Google s’appliquent.
Obtenir un prêt immobilier au meilleur taux ?

En poursuivant votre navigation sans modifier vos paramètres, vous acceptez l'utilisation de cookies susceptibles de réaliser des statistiques de visite. Cliquez ici pour plus d'informations