Bondy sud coquetiers

— Bondy 93140 —
240 000 €
83 m² / 79 m²
4 pièces
balcon/terrassejardin

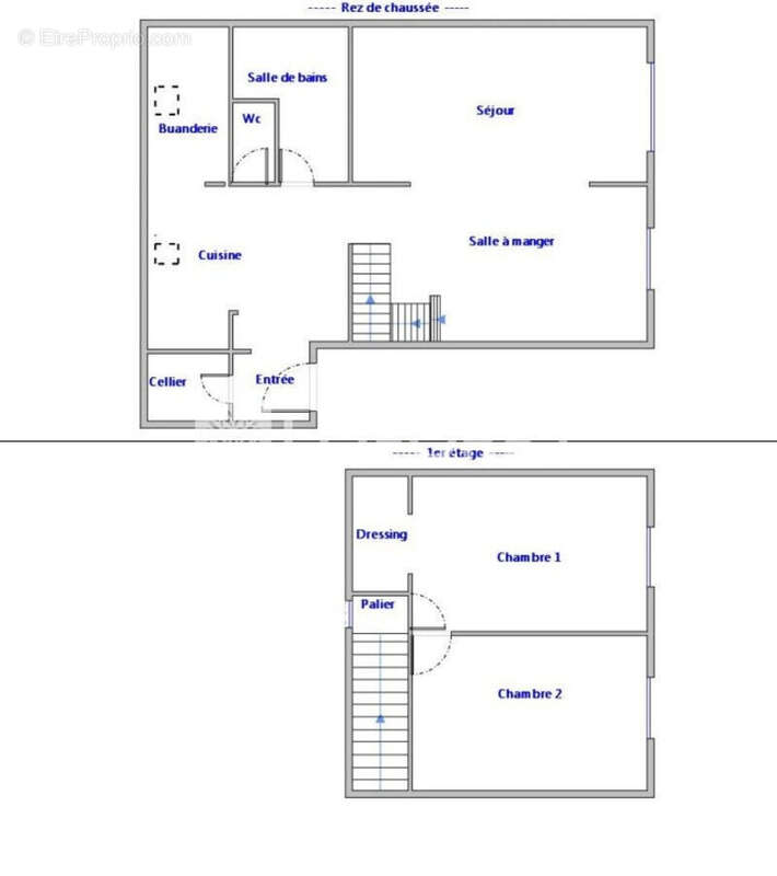
Bondy sud Coquetiers à 5mn du T4, charmante maison de ville INDEPENDANTE comprenant : entrée, dressing, cuisine, buanderie, double séjour, WC, 2 chambres et salle de bains. ELECTRICITE AUX NORMES. RAVALEMENT + ISOLATION EXTERIEURE. TAXE FONCIERE 989 euros/AN

Référence: 1619
Honoraires à la charge du vendeur.
Barème des honoraires
DPE
A
B
C
D
E
F
G
GES
A
B
C
D
E
F
G

Prêt immobilier

Vous souhaitez connaître votre capacité d’emprunt et trouver le meilleur crédit immobilier ?
Réaliser une simulation gratuite

Maison à BONDY
Maison à BONDY
Maison à BONDY
Maison à BONDY
Maison à BONDY
Maison à BONDY
Maison à BONDY
Maison à BONDY
Maison à BONDY
Maison à BONDY
Maison à BONDY
Maison à BONDY
Ce site est protégé par reCAPTCHA la Politique de confidentialité et les Conditions d’utilisation de Google s’appliquent.
Obtenir un prêt immobilier au meilleur taux ?

En poursuivant votre navigation sans modifier vos paramètres, vous acceptez l'utilisation de cookies susceptibles de réaliser des statistiques de visite. Cliquez ici pour plus d'informations