Bénéficiez des services de nos partenaires locaux soigneusement sélectionnés
pour vous accompagner dans votre parcours d'achat immobilier

Appartement 85m² à cagnes-sur-mer

— Cagnes-Sur-Mer 06800 —
639 000 €
85 m²
3 pièces

Nos partenaires locaux
Iad France - Cyril Fournier ([Coordonnées masquées]) vous propose : Élégant 3 pièces avec grande terrasse plein sud - Cagnes-sur-Mer
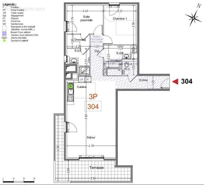
Situé dans un secteur résidentiel prisé, à deux pas du bord de mer, cet appartement 3 pièces de 85,32 m² environ séduit par ses volumes généreux, sa lumière naturelle et sa terrasse de 17,21 m² environ exposée plein sud.
Un bien d'exception conjuguant confort, modernité et sérénité, idéal pour un couple, une famille ou un investisseur recherchant un bien patrimonial haut de gamme.
________________________________________
Caractéristiques principales
oType : Appartement T3
oÉtage : 3 étage
oSurface habitable : 85,32 m² environ
oTerrasse : 17,21 m² environ
oExposition : Sud - très lumineux
oStationnement : Aucun stationnement inclus
oPrix TTC (TVA 20 %) : 610 000 ¤
oFrais de notaire à la charge du vendeur
oPerformance énergétique : RT 2020 - haute efficacité thermique
________________________________________
Prestations et confort
oRésidence contemporaine et sécurisée
oCarrelage grand format dans les pièces à vivre et les chambres
oMenuiseries double vitrage à isolation renforcée
oVolets roulants électriques dans chaque pièce
oSalle de bain équipée : meuble vasque, miroir, sèche-serviettes, faïence murale
oCuisine ouverte sur séjour avec accès direct à la terrasse
oAscenseur, local vélos, accès sécurisé par visiophone
oFinitions modernes et matériaux haut de gamme
________________________________________
Un cadre de vie idéal
Cet appartement profite d'un emplacement exceptionnel à Cagnes-sur-Mer, dans un environnement calme et agréable :
oÀ 200 mètres des plages et de la promenade du bord de mer
oÀ proximité des commerces, écoles, marchés et restaurants
oTransports à pied : gare SNCF, lignes de bus, future ligne de tram
oAccès rapide vers Nice, Antibes et l'aéroport international
Un lieu de vie où authenticité méditerranéenne et confort moderne se rejoignent.
________________________________________
Potentiel locatif et rentabilité
oPrix TTC (TVA 20 %) : 610 000 ¤
oLoyer de marché estimé (secteur libre) : env. 1 100 à 1 200 ¤ / mois
oRentabilité brute estimée : 2,1 %
oZone locative : À (secteur à forte demande)
o

Honoraires d'agence à la charge du vendeur. Bien non soumis au DPE. Les informations sur les risques auxquels ce bien est exposé sont disponibles sur le site Géorisques : www.georisques.gouv.fr. La présente annonce immobilière a été rédigée sous la responsabilité éditoriale de M. Cyril Fournier EI (ID 57751), mandataire indépendant en immobilier (sans détention de fonds), agent commercial de la SAS I@D France immatriculé au RSAC de Cannes sous le numéro 751452475, titulaire de la carte de démarchage immobilier pour le compte de la société I@D France SAS.
Retrouvez tous nos biens sur notre site internet. www.iadfrance.fr.
Informations LOI ALUR :
Honoraires charge vendeur. (gedeon_6727_32068331)
Voir plus

Référence: 1869202-7
Honoraires à la charge du vendeur.

Prêt immobilier

Vous souhaitez connaître votre capacité d’emprunt et trouver le meilleur crédit immobilier ?
Réaliser une simulation gratuite

Photo 1 - Appartement à CAGNES-SUR-MER
Photo 1
Photo 2 - Appartement à CAGNES-SUR-MER
Photo 2
Photo 3 - Appartement à CAGNES-SUR-MER
Photo 3
Photo 4 - Appartement à CAGNES-SUR-MER
Photo 4
Photo 5 - Appartement à CAGNES-SUR-MER
Photo 5
Photo 6 - Appartement à CAGNES-SUR-MER
Photo 6
Photo 7 - Appartement à CAGNES-SUR-MER
Photo 7
Photo 8 - Appartement à CAGNES-SUR-MER
Photo 8
Photo 9 - Appartement à CAGNES-SUR-MER
Photo 9
Ce site est protégé par reCAPTCHA la Politique de confidentialité et les Conditions d’utilisation de Google s’appliquent.
Obtenir un prêt immobilier au meilleur taux ?

En poursuivant votre navigation sans modifier vos paramètres, vous acceptez l'utilisation de cookies susceptibles de réaliser des statistiques de visite. Cliquez ici pour plus d'informations