Bénéficiez des services de nos partenaires locaux soigneusement sélectionnés
pour vous accompagner dans votre parcours d'achat immobilier

Commerce 96m² à bourgoin-jallieu

— Bourgoin-Jallieu 38300 —
220 000 €
96 m²
6 pièces

Nos partenaires locaux
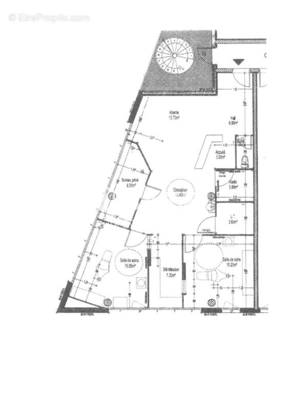
Idéalement situé à Bourgoin-Jallieu, dans le secteur prisé de l'Oiselet, ce local professionnel bénéficie d'un emplacement stratégique. À mi-chemin entre Lyon et Grenoble, la ville constitue un véritable carrefour économique avec un accès rapide aux grands axes routiers, dont l'autoroute à seulement cinq minutes. Bourgoin-Jallieu séduit par son dynamisme et son cadre de vie attractif, idéal pour une activité professionnelle.
Ce local de 98 m² est implanté dans le bâtiment moderne construit en 2009 et réservé aux activités tertiaires et professions libérales. En parfait état, il est entouré de professionnels tels que médecins, dentistes et experts-comptables, offrant un environnement de travail stimulant.
Actuellement classé E au diagnostic de performance énergétique (DPE), cette note s'explique par une consommation énergétique importante de plus de 1 000 kWh par mois, liée à l'usage intensif du locataire actuel. Ce niveau de consommation est élevé pour un bâtiment de cet âge. Cependant, le local était précédemment classé C, ce qui témoigne d'un potentiel d'amélioration significatif avec une gestion énergétique optimisée.
Le bien est conforme aux normes PMR, équipé d'un ascenseur, d'un chauffage par pompe à chaleur et bénéficie d'un grand parking, assurant confort et praticité pour vos collaborateurs et clients.
Disponible à partir de février 2025, ce local représente une opportunité rare pour développer votre activité dans un cadre professionnel de qualité. Contactez-nous pour organiser une visite ou obtenir plus d'informations.

Le bien comprend 1 lot, et il est situé dans une copropriété de 0 lot (les charges courantes annuelles moyennes de copropriété sont de 2688 ¤ et le syndicat des copropriétaires ne fait pas l'objet d'une procédure citée à l'article L. 721-1 du code de la construction et de l'habitation).

Les informations sur les risques auxquels ce bien est exposé sont disponibles sur le site Géorisques : www.georisques.gouv.fr
Prix de vente honoraires d'agence inclus : 220 000 ¤ HT + 2 000 ¤ TVA, soit 212 000 ¤ TTC
Prix de vente hors honoraires d'agence : 200 000 ¤ HT + 0 ¤ TVA, soit 200 000 ¤ TTC
Honoraires d'agence : 10 000 ¤ HT + 2 000 ¤ TVA, soit 12 000 ¤ TTC (6 % TTC du prix de vente hors honoraires d'agence)
Honoraires charge acquéreur

Contactez votre conseiller SAFTI : Turgay ARKAC, Tél. : [Coordonnées masquées], E-mail : [Coordonnées masquées] - EI - Agent commercial immatriculé au RSAC de VIENNE sous le numéro 480 976 232.
Informations LOI ALUR :
Soumis au régime de copropriété.
Quote part annuelle(moyenne) : 2688 euros.
Honoraires : 4.76 % TTC charge acquéreur.
Prix hors honoraires : 210 000 ¤. (gedeon_26118_32061804)
Voir plus

Référence: 752400
Bien en copropriété. Charges de copropriété : 2688 €.
Honoraires d'agence de 4.76% à la charge de l'acquéreur
Barème des honoraires
DPE
A
B
C
D
E
F
G
GES
A
B
C
D
E
F
G

Prêt immobilier

Vous souhaitez connaître votre capacité d’emprunt et trouver le meilleur crédit immobilier ?
Réaliser une simulation gratuite

Photo 1 - Commerce à BOURGOIN-JALLIEU
Photo 1
Photo 2 - Commerce à BOURGOIN-JALLIEU
Photo 2
Photo 3 - Commerce à BOURGOIN-JALLIEU
Photo 3
Photo 4 - Commerce à BOURGOIN-JALLIEU
Photo 4
Photo 5 - Commerce à BOURGOIN-JALLIEU
Photo 5
Photo 6 - Commerce à BOURGOIN-JALLIEU
Photo 6
Photo 7 - Commerce à BOURGOIN-JALLIEU
Photo 7
Photo 8 - Commerce à BOURGOIN-JALLIEU
Photo 8
Photo 9 - Commerce à BOURGOIN-JALLIEU
Photo 9
Ce site est protégé par reCAPTCHA la Politique de confidentialité et les Conditions d’utilisation de Google s’appliquent.
Obtenir un prêt immobilier au meilleur taux ?

En poursuivant votre navigation sans modifier vos paramètres, vous acceptez l'utilisation de cookies susceptibles de réaliser des statistiques de visite. Cliquez ici pour plus d'informations