Bénéficiez des services de nos partenaires locaux soigneusement sélectionnés
pour vous accompagner dans votre parcours d'achat immobilier

Maison 232m² à reichshoffen

— Reichshoffen 67110 —
199 900 €
232 m² / 1 376 m²
10 pièces
parkingbalcon/terrassejardin

Nos partenaires locaux
Grande maison familiale à Reichshoffen
232 m² habitables avec potentiel d'aménagement.

Cette spacieuse maison familiale de 232 m² habitables offre un agencement idéal pour accueillir une grande famille ou pour être réaménagée en plusieurs espaces.

Actuellement, les espaces sont séparés en trois appartement avec possibilité de découpage et création de lots.

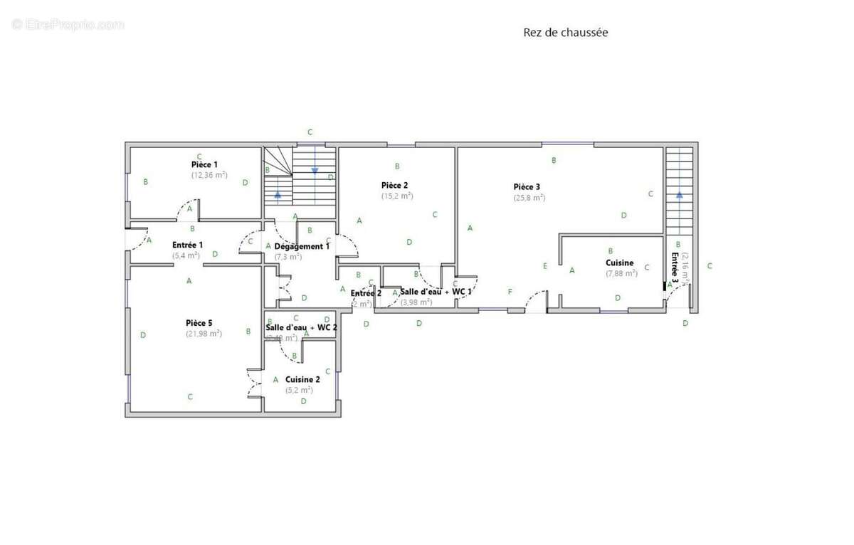
Rez-de-chaussée espace 1 : une entrée, une cuisine, un salon lumineux, une chambre et une salle d'eau.

Étage espace 1 : Trois chambres et une salle d'eau (possibilité de création d'un F2 avec entrée indépendante)

Rez-de-chaussée espace 2 : Une entrée, une chambres, un grand séjour, une cuisine et une salle d'eau avec WC.

Étage espace 2 : Une entrée, deux chambres, un grand séjour, une cuisine avec salle à manger et une salle d'eau avec WC.

Combles aménageables

Le sous-sol abrite deux caves dont une cave voûtée.

Le chauffage est assuré par un système de gaz, un système au fioul et un système électrique.

À l'extérieur, profitez d'une grande cour, de deux garages, d'une dépendance (possibilité de création de logement(s) et d'un terrain spacieux.

Honoraires à la charge du vendeur.

Honoraires à la charge du vendeur. Classe énergie F, Classe climat C Logement à consommation énergétique excessive. Montant moyen estimé des dépenses annuelles d'énergie pour un usage standard, établi à partir des prix de l'énergie de l'année 2021 : entre 6415.10 et 6415.10 €. Les informations sur les risques auxquels ce bien est exposé sont disponibles sur le site Géorisques : georisques.gouv.fr.

Votre conseiller JUND IMMOBILIER : Co-Gérant - Alexis JUND
Carte T CPI67[Coordonnées masquées]00048
RCP 733300480001
Voir plus

Référence: VM289-JUNDIMMO
Honoraires à la charge du vendeur.
Barème des honoraires
DPE
A
B
C
D
E
F
G
GES
A
B
C
D
E
F
G

Prêt immobilier

Vous souhaitez connaître votre capacité d’emprunt et trouver le meilleur crédit immobilier ?
Réaliser une simulation gratuite

Maison à REICHSHOFFEN
Maison à REICHSHOFFEN
Maison à REICHSHOFFEN
Maison à REICHSHOFFEN
Maison à REICHSHOFFEN
Maison à REICHSHOFFEN
Maison à REICHSHOFFEN
Maison à REICHSHOFFEN
Maison à REICHSHOFFEN
Ce site est protégé par reCAPTCHA la Politique de confidentialité et les Conditions d’utilisation de Google s’appliquent.
Obtenir un prêt immobilier au meilleur taux ?

En poursuivant votre navigation sans modifier vos paramètres, vous acceptez l'utilisation de cookies susceptibles de réaliser des statistiques de visite. Cliquez ici pour plus d'informations