Bénéficiez des services de nos partenaires locaux soigneusement sélectionnés
pour vous accompagner dans votre parcours d'achat immobilier

Cucuron : terrain constructible avec pc purgé 12 appartements

— Cucuron 84160 —
600 000 €
1 581 m²

Nos partenaires locaux
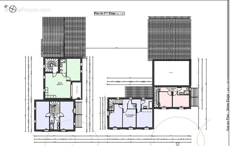
Cucuron centre : Vente d'un très beau projet sur parcelle de terrain de 1581 m2. Permis accordé et purgé pour édification d'un ensemble de 12 logements en sept bâtiments et 15 places de parking ouvertes. L'emprise au sol totale du projet est de 474 m2, la surface plancher de 827m2. Celui-ci comprend un T1, trois T2 avec extérieur ou loggia , six T3 dont 5 duplex avec terrasse et jardin, et deux T4 en duplex avec terrasse ou jardin, également pour une surface allant de 31,77 m2 à 111,14 m2 de surface habitable.
Le projet est élégant (croquis annexés). Envois du PC sur demande. Pour promoteur ou entreprise de maçonnerie générale. Secteur proche Ansouis, Lourmarin. Possibilité bureaux, appart-hotel, gites... Me téléphoner pour de plus amples informations. Les honoraires sont à la charge du vendeur.
Les informations sur les risques auxquels ce bien est exposé sont disponibles sur le site Géorisques : www. georisques. gouv. fr.

Contactez Jacqueline PORIKIAN Entrepreneur Individuel, Agent commercial OptimHome (RSAC N°500 534 482 Greffe de AVIGNON) [Coordonnées masquées] (réf. 595265 )
Voir plus

Référence: 830031664257
Honoraires à la charge du vendeur.

Prêt immobilier

Vous souhaitez connaître votre capacité d’emprunt et trouver le meilleur crédit immobilier ?
Réaliser une simulation gratuite

Terrain à CUCURON
Terrain à CUCURON
Terrain à CUCURON
Terrain à CUCURON
Terrain à CUCURON
Terrain à CUCURON
Terrain à CUCURON
Ce site est protégé par reCAPTCHA la Politique de confidentialité et les Conditions d’utilisation de Google s’appliquent.
Obtenir un prêt immobilier au meilleur taux ?

En poursuivant votre navigation sans modifier vos paramètres, vous acceptez l'utilisation de cookies susceptibles de réaliser des statistiques de visite. Cliquez ici pour plus d'informations