Bénéficiez des services de nos partenaires locaux soigneusement sélectionnés
pour vous accompagner dans votre parcours d'achat immobilier

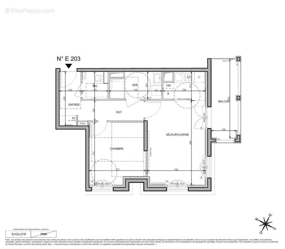
2 pieces - plessis-robinson

— Le Plessis-Robinson 92350 —
330 000 €
48 m²
2 pièces
balcon/terrasse

Nos partenaires locaux
Situé dans un quartier résidentiel prisé, à proximité immédiate des commerces, écoles et transports, cet appartement 2 pièces de 48 m2 offre un cadre de vie à la fois paisible et pratique.
L’entrée mène à un séjour lumineux avec cuisine ouverte, idéal pour vos moments de convivialité. La pièce de vie s’ouvre sur une terrasse prolongée d’un jardin privatif, parfait pour profiter d’un espace extérieur verdoyant tout au long de l’année. Une chambre confortable, une salle d’eau moderne avec WC, ainsi qu’un agencement bien pensé viennent compléter ce bien.
Ce logement se distingue par ses finitions soignées : parquet dans les pièces de vie, carrelage grand format dans les pièces humides, menuiseries en aluminium, meuble vasque avec miroir, pare-douche, vidéophone et contrôle d’accès sécurisé.
Très bien desservi par les transports (tramway T10 à 200 m, T6 à 500 m, plusieurs lignes de bus), et à seulement 15 minutes à pied du bois de Clamart, cet appartement allie confort moderne et douceur de vivre dans un cadre arboré.
Un bien rare sur le secteur, idéal pour un couple, un premier achat ou un investissement de qualité.
Voir plus

Barème des honoraires

Prêt immobilier

Vous souhaitez connaître votre capacité d’emprunt et trouver le meilleur crédit immobilier ?
Réaliser une simulation gratuite

Appartement à LE PLESSIS-ROBINSON
Appartement à LE PLESSIS-ROBINSON
Appartement à LE PLESSIS-ROBINSON
Appartement à LE PLESSIS-ROBINSON
Appartement à LE PLESSIS-ROBINSON
Appartement à LE PLESSIS-ROBINSON
Ce site est protégé par reCAPTCHA la Politique de confidentialité et les Conditions d’utilisation de Google s’appliquent.
Obtenir un prêt immobilier au meilleur taux ?

En poursuivant votre navigation sans modifier vos paramètres, vous acceptez l'utilisation de cookies susceptibles de réaliser des statistiques de visite. Cliquez ici pour plus d'informations